2412 - 130 River Street, Toronto, Ontario M5A 0R8

Listed for:
$2,250
1 beds
1 baths
Listed 7 days ago
Apartment for rent: 2412 - 130 River Street, Toronto, Ontario M5A 0R8

View all 22 photos

About

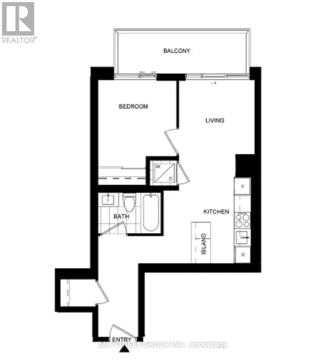
Dundas St. E./River St. Welcome To The Newest Building In Regent Park By Daniels! Bright & Spacious 24-Floor East-Facing 1B Unit With 91Sf Balcony, Stunning Unobstructed Lake View & Green Space, Large Walk-In Closet, Sleek Modern Kitchen, S/S Appliances, Quartz Countertop & Centre Island, Floor To Ceiling Windows. Amazing Amenities: Kid's Zone, Co-Working Patio, Party Room, Outdoor BBQ & Rooftop Garden. Walking Distance to Street Car Station @ Gerrard & Dundas, Community Centre, Park, Riverdale Farm, Community Pool, Highway, And So On. (id:27476)

Property Highlights

MLS® Number
C12922092
Type
Single Family
Community Name
Regent Park
Ownership Type
Condominium/Strata

Building

Building Type
Apartment
Square Footage
500 - 599 sqft
Bathrooms Total
1
Bedrooms Above Ground
1
Bedrooms Total
1
Exterior Finish
Concrete
Fireplace Present
No
Basement Type
None
Basement Features
Building Heating Type
Forced air
Heating Fuel
Electric
Building Cooling Type
Central air conditioning

Location

Learn more about this property
Listing provided by:
BAY STREET GROUP INC.
MLS® number:
C12922092
Agent:
Marina Yue
*Indicates required field
Name is required
Email is required
Please enter a valid phone number (e.g., 416-111-1111).

Street Spotlight - For rent