2107 - 89 Church Street, Toronto, Ontario M9N 1N4

Listed for:
$3,660
3 beds
2 baths
Listed 7 days ago
Apartment for rent: 2107 - 89 Church Street, Toronto, Ontario M9N 1N4

View all 32 photos

About

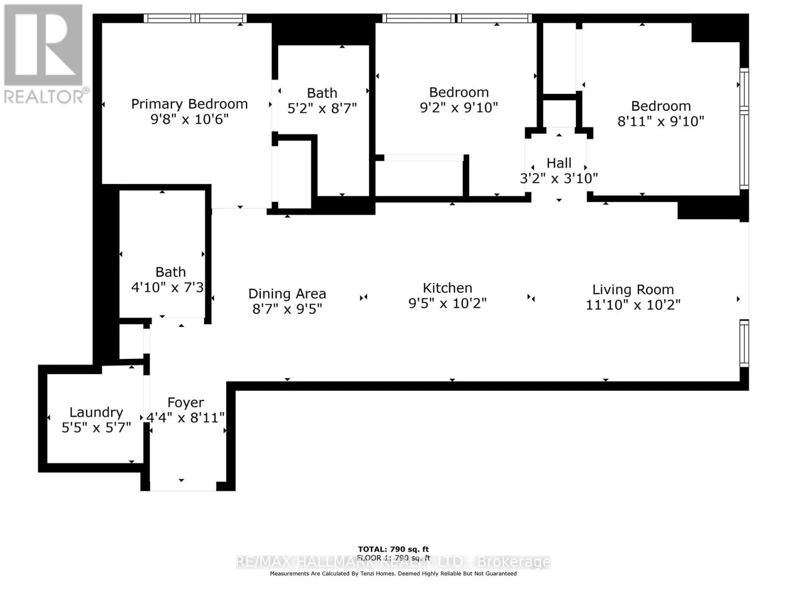
Cross Streets: Church/ Adelaide. ** Directions: Church to Adelaide. Outstanding views from this rare 3 bedroom corner suite at The Saint! Spacious Minto built floor plan with generous sized kitchen, eat on island and lots of cupboard space! Enter into the suite from a dedicated and private entrance way. Lots of room to sit down to remove your shoes and hang your coat! Generous sized laundry room ensuite with storage area. Walk into a bright and open concept suite with an attractive light colour palate which brings in all of the south facing light. Stand on the balcony, and the view is picture perfect, directly looking south to the St James Cathedral and St Lawrence Market neighbourhood. 3 separate bedrooms and 2 full bathrooms make this a great space to enjoy downtown life! Walking distance to the Financial District, street car and subway, numerous cafes, grocery stores and top tier dining. This location is hard to beat! 5 star living with 24 hr Conceirge, gym, party room, outdoor terrace and more! (id:27476)

Property Highlights

MLS® Number
C12922114
Type
Single Family
Community Name
Church-Yonge Corridor
Ownership Type
Condominium/Strata
Parking Space Total
1

Building

Building Type
Apartment
Square Footage
800 - 899 sqft
Bathrooms Total
2
Bedrooms Above Ground
3
Bedrooms Total
3
Exterior Finish
Brick
Fireplace Present
No
Basement Type
None
Basement Features
Building Heating Type
Heat Pump
Heating Fuel
Electric
Building Cooling Type
Central air conditioning

Location

Learn more about this property
Listing provided by:
RE/MAX HALLMARK REALTY LTD.
MLS® number:
C12922114
Agent:
Amy Gilmore
*Indicates required field
Name is required
Email is required
Please enter a valid phone number (e.g., 416-111-1111).

Street Spotlight - For rent