905 - 508 Wellington Street W, Toronto, Ontario M5V 1E3

Listed for:
$2,000
1 beds
1 baths
Listed 2 days ago
Apartment for rent: 905 - 508 Wellington Street W, Toronto, Ontario M5V 1E3

View all 7 photos

About

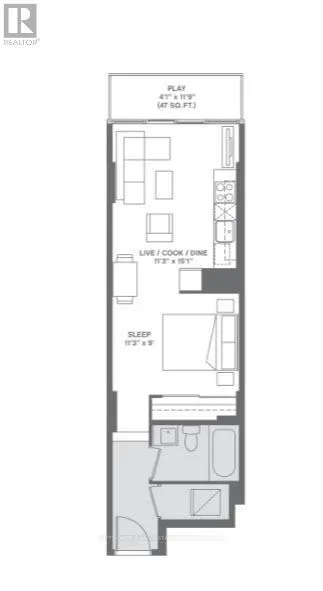
Portland & Wellington St W King West Hot Location! This 1 Bedroom, 1 Bathroom Unit Features a Functional Layout, Modern Kitchen With Stainless Steel Stove Top Oven And Dishwasher, Floor To Ceiling Windows With A North Facing Balcony. Separate Sleeping Area With Double Closest And Built In Closet Organizers. Extra Large Laundry closet. Building Amenities Include: Concierge,Media Room, Party/Meeting Room, Gym. (id:27476)

Property Highlights

MLS® Number
C12934444
Type
Single Family
Community Name
Waterfront Communities C1
Ownership Type
Condominium/Strata

Building

Building Type
Apartment
Square Footage
0 - 499 sqft
Bathrooms Total
1
Bedrooms Above Ground
1
Bedrooms Total
1
Amenities
Storage - Locker
Exterior Finish
Concrete
Fireplace Present
No
Basement Type
None
Basement Features
Building Heating Type
Forced air
Heating Fuel
Natural gas
Building Cooling Type
Central air conditioning

Location

Learn more about this property
Listing provided by:
CITYSCAPE REAL ESTATE LTD.
MLS® number:
C12934444
Agent:
Michelangela Sciortino
*Indicates required field
Name is required
Email is required
Please enter a valid phone number (e.g., 416-111-1111).

Street Spotlight - For rent