373a Danforth Road, Toronto, Ontario M1L 3X6

Listed for:
$1,738,888
0 beds
0 baths
Listed 3 days ago
373a Danforth Road, Toronto, Ontario M1L 3X6

View all 7 photos

About

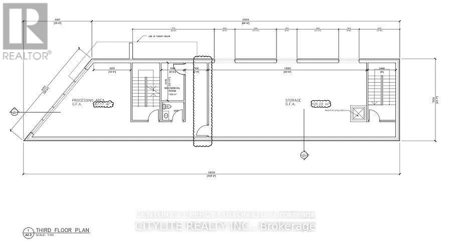
Danforth Rd And Birchmount Rd . (id:27476)

Property Highlights

MLS® Number
E12937676
Type
Vacant Land
Community Name
Clairlea-Birchmount
Land Size
149.57 x 168.37 FT ; Iregular

Building

Square Footage
11761 sqft
Amenities
Public Transit
Fireplace Present
No
Basement Type
Basement Features
Building Heating Type
No heat
Heating Fuel
Building Cooling Type
None

Location

Learn more about this property
Listing provided by:
CENTURY 21 PERCY FULTON LTD.
MLS® number:
E12937676
Agent:
A. Azim Dewan
*Indicates required field
Name is required
Email is required
Please enter a valid phone number (e.g., 416-111-1111).