1801 - 185 Roehampton Avenue, Toronto, Ontario M4P 0C6

Listed for:
$2,800
2 beds
2 baths
Listed 46 days ago
Apartment for rent: 1801 - 185 Roehampton Avenue, Toronto, Ontario M4P 0C6

View all 33 photos

About

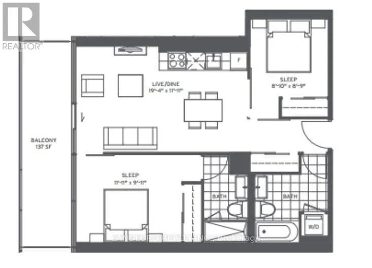
Cross Streets: Yonge/Eglinton. ** Directions: Please Use GPS. Professionally Managed 2 Bed, 2 Bath Unfurnished Suite In The Heart Of Midtown Toronto! Open-Concept Living And Kitchen Area With Walk-Out To A Huge Balcony, Featuring Stone Countertops, Built-In Appliances, And Engineered Wood Flooring. Primary Bedroom Overlooks The Balcony And Features A 3-Piece Ensuite And Built-In Closet. Second Bedroom Located On The Opposite Side Of The Suite Overlooking The Living Area And Situated Directly Across From The 4-Piece Second Bathroom. Additional Features Include Floor-To-Ceiling Windows, Stainless Steel Backsplash, Modern-Style Cabinetry, And Access To All Building Amenities. Only Minutes Walk To Eglinton Station And Mt Pleasant Station. Walk Score Of 97! **Appliances: Fridge, B/I Oven, Cooktop, Dishwasher, Washer And Dryer **Utilities: Heat, Hydro & Water Extra **Locker: 1 Locker Included (id:27476)

Property Highlights

MLS® Number
C12940260
Type
Single Family
Community Name
Mount Pleasant West
Ownership Type
Condominium/Strata

Building

Building Type
Apartment
Square Footage
700 - 799 sqft
Bathrooms Total
2
Bedrooms Above Ground
2
Bedrooms Total
2
Amenities
Storage - Locker
Exterior Finish
Concrete
Fireplace Present
No
Basement Type
None
Basement Features
Building Heating Type
Forced air
Heating Fuel
Other
Building Cooling Type
Central air conditioning

Location

Learn more about this property
Listing provided by:
LANDLORD REALTY INC.
MLS® number:
C12940260
Agent:
Victoria Reid
*Indicates required field
Name is required
Email is required
Please enter a valid phone number (e.g., 416-111-1111).

Street Spotlight - For rent