2002 - 20 Edward Street, Toronto, Ontario M5G 0C5

Listed for:
$2,400
2 beds
1 baths
Listed 1 day ago
Apartment for rent: 2002 - 20 Edward Street, Toronto, Ontario M5G 0C5

View all 10 photos

About

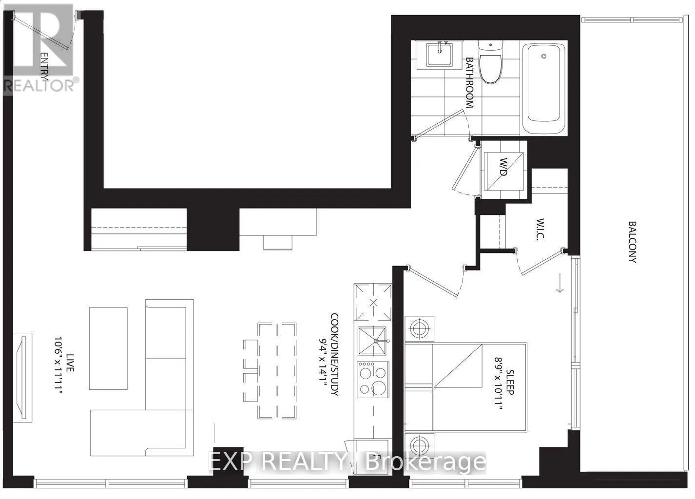
Yonge / Dundas North East Conner Unit Featuring 1 Bedrooms + 1 Study. 598 Sqft Plus 127 Sqft Balcony. This Spacious Unit Features A 9Ft Ceiling And Floor To Ceiling Windows Offering Natural Light And A Large Balcony With A Fantastic View Of The Unobstructed City. High End B/I Stainless Steel Appliances. Steps To T&T , Subway, Eaton Centre, Dundas Square, Ryerson, U Of T, Ocad University, Shopping Centre, Restaurants & Much More! Condo Amenities: Party Room & Kitchen, Lounge, Outdoor Bbq, Study & Meeting Area, Theatre, Outdoor Sports Court, Gym & Yoga Studio, Outdoor Lounge..... (id:27476)

Property Highlights

MLS® Number
C12942300
Type
Single Family
Community Name
Bay Street Corridor
Ownership Type
Condominium/Strata

Building

Building Type
Apartment
Square Footage
500 - 599 sqft
Bathrooms Total
1
Bedrooms Above Ground
1
Bedrooms Total
2
Amenities
Security/Concierge, Exercise Centre, Storage - Locker Hospital, Public Transit, Schools
Exterior Finish
Concrete
Fireplace Present
No
Basement Type
None
Basement Features
Building Heating Type
Forced air
Heating Fuel
Other
Building Cooling Type
Central air conditioning

Location

Learn more about this property
Listing provided by:
EXP REALTY
MLS® number:
C12942300
Agent:
Lily Tang
*Indicates required field
Name is required
Email is required
Please enter a valid phone number (e.g., 416-111-1111).

Street Spotlight - For rent