714 - 8 Rean Drive, Toronto, Ontario M2K 3B9

Listed for:
$434,990
1 beds
1 baths
Listed 46 days ago
Apartment for rent: 714 - 8 Rean Drive, Toronto, Ontario M2K 3B9

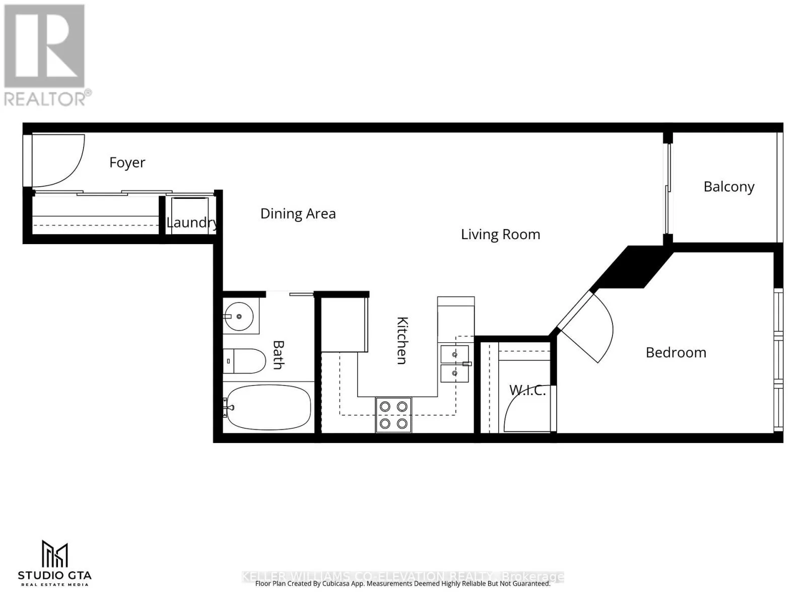
View all 15 photos

About

Sheppard Ave E and Bayview Ave A rare chance to own in the coveted NY Towers - The Waldorf. This suite offers a bright, functional layout designed for everyday comfort, upgraded kitchen with granite countertops, SS appliances, supported by one of Bayview Village's most amenity-rich buildings featuring concierge/security, indoor pool, hot tub, sauna, gym, library, and additional recreation spaces including virtual golf and billiards. Step outside and enjoy the unbeatable convenience of Bayview Village shopping, steps to Sheppard subway, and quick highway access. (id:27476)

Property Highlights

MLS® Number
C12947482
Type
Single Family
Community Name
Bayview Village
Maintenance Fee
659.95
Ownership Type
Condominium/Strata
Parking Space Total
1

Building

Building Type
Apartment
Square Footage
600 - 699 sqft
Bathrooms Total
1
Bedrooms Above Ground
1
Bedrooms Total
1
Amenities
Security/Concierge, Exercise Centre, Party Room, Sauna, Storage - Locker Hospital, Park, Public Transit, Schools
Exterior Finish
Concrete
Fireplace Present
No
Basement Type
None
Basement Features
Building Heating Type
Forced air
Heating Fuel
Natural gas
Building Cooling Type
Central air conditioning

Location

Learn more about this property
Listing provided by:
KELLER WILLIAMS CO-ELEVATION REALTY
MLS® number:
C12947482
Agent:
Ryan Mclean
*Indicates required field
Name is required
Email is required
Please enter a valid phone number (e.g., 416-111-1111).

Street Spotlight - For sale