1300 Bay Street, Toronto, Ontario M5R 3K8

Listed for:
$129,999
0 beds
0 baths
Listed 15 days ago
1300 Bay Street, Toronto, Ontario M5R 3K8

View all 37 photos

About

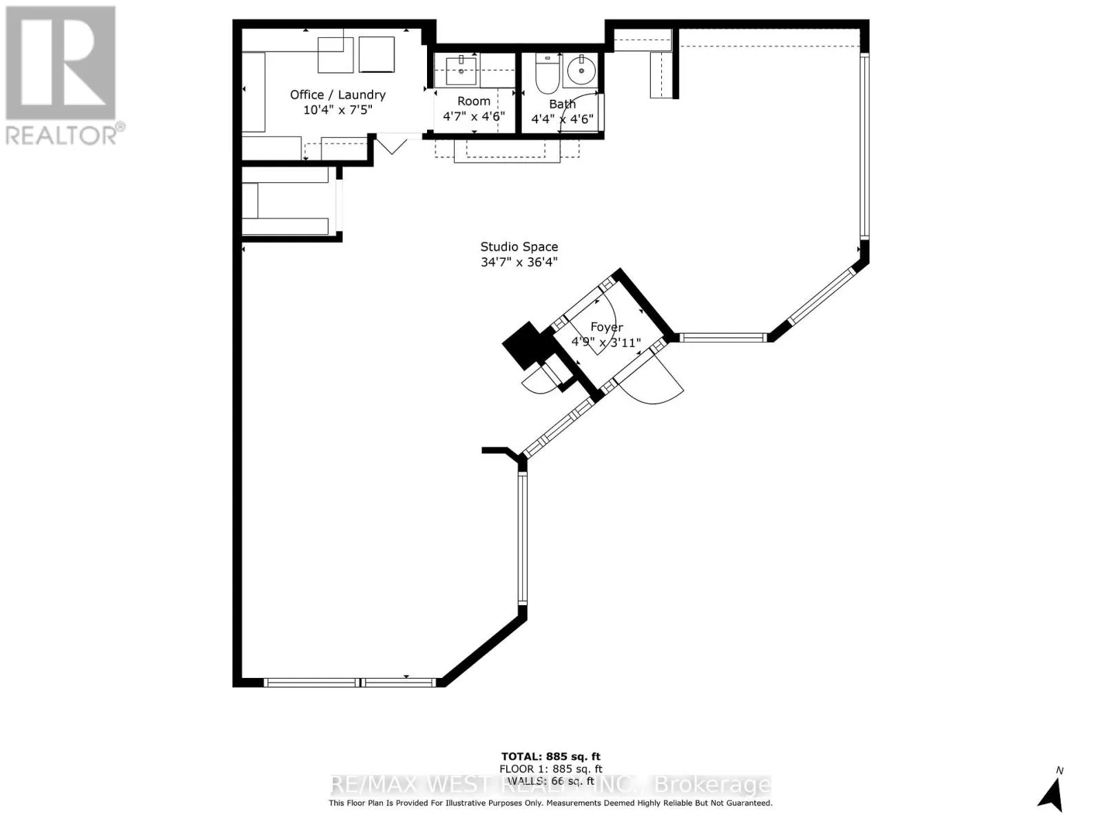
Bay & Scollard Step into success with this rare opportunity to own a thriving hair salon business in the heart of prestigious Yorkville, one of Toronto's most sought-after and stylish neighbourhoods. Perfectly situated in a high-foot-traffic, high-income area, on the intersection of Bloor and Scollard St, this fully equipped, beautifully designed modern salon offers the ideal setting for beauty professionals or investors looking to capitalize on a booming market. With a large loyal clientele, chic interior, and strong community presence, this salon is ready for you to walk in and take over - no downtime, no guesswork. Whether you're an ambitious stylist ready to build your own brand or an entrepreneur seeking a solid business with consistent cash flow, this is the opportunity you've been waiting for which includes a huge growth potential with the right vision. Featuring 7 hairdresser stations (with space for more), 3 hair washing sinks, welcoming front desk and retail area, private staff room, washer & dryer, and a bathroom. This business includes all furniture, equipment, inventory, goodwill, and all staff members are willing to remain. Excellent lease terms and supportive landlord, with rent of only $4,868/m all inclusive. (id:27476)

Property Highlights

MLS® Number
C12947870
Type
Business
Community Name
Annex
Land Size
Unit=30 x 36 FT

Building

Square Footage
1100 sqft
Fireplace Present
No
Basement Type
Basement Features
Building Heating Type
Baseboard heaters
Heating Fuel
Building Cooling Type
Fully air conditioned

Utilities

Water
Municipal water

Location

Learn more about this property
Listing provided by:
RE/MAX WEST REALTY INC.
MLS® number:
C12947870
Agent:
David Buriev
*Indicates required field
Name is required
Email is required
Please enter a valid phone number (e.g., 416-111-1111).

Street Spotlight - For sale