Th 5 - 118 Finch Avenue W, Toronto, Ontario M2N 7G2

Listed for:
$749,900
2 beds
3 baths
Listed 15 days ago
Row / Townhouse for rent: Th 5 - 118 Finch Avenue W, Toronto, Ontario M2N 7G2

View all 46 photos

About

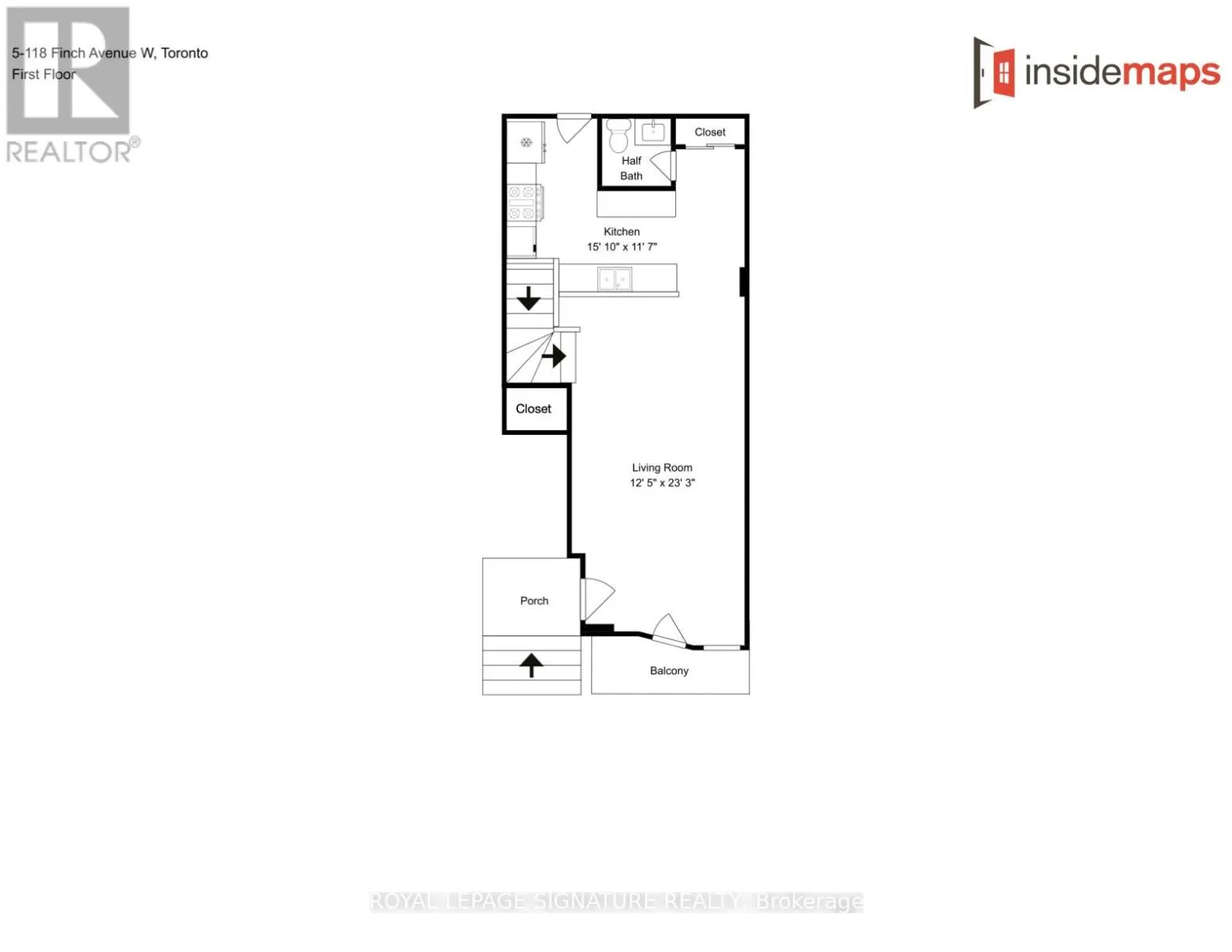
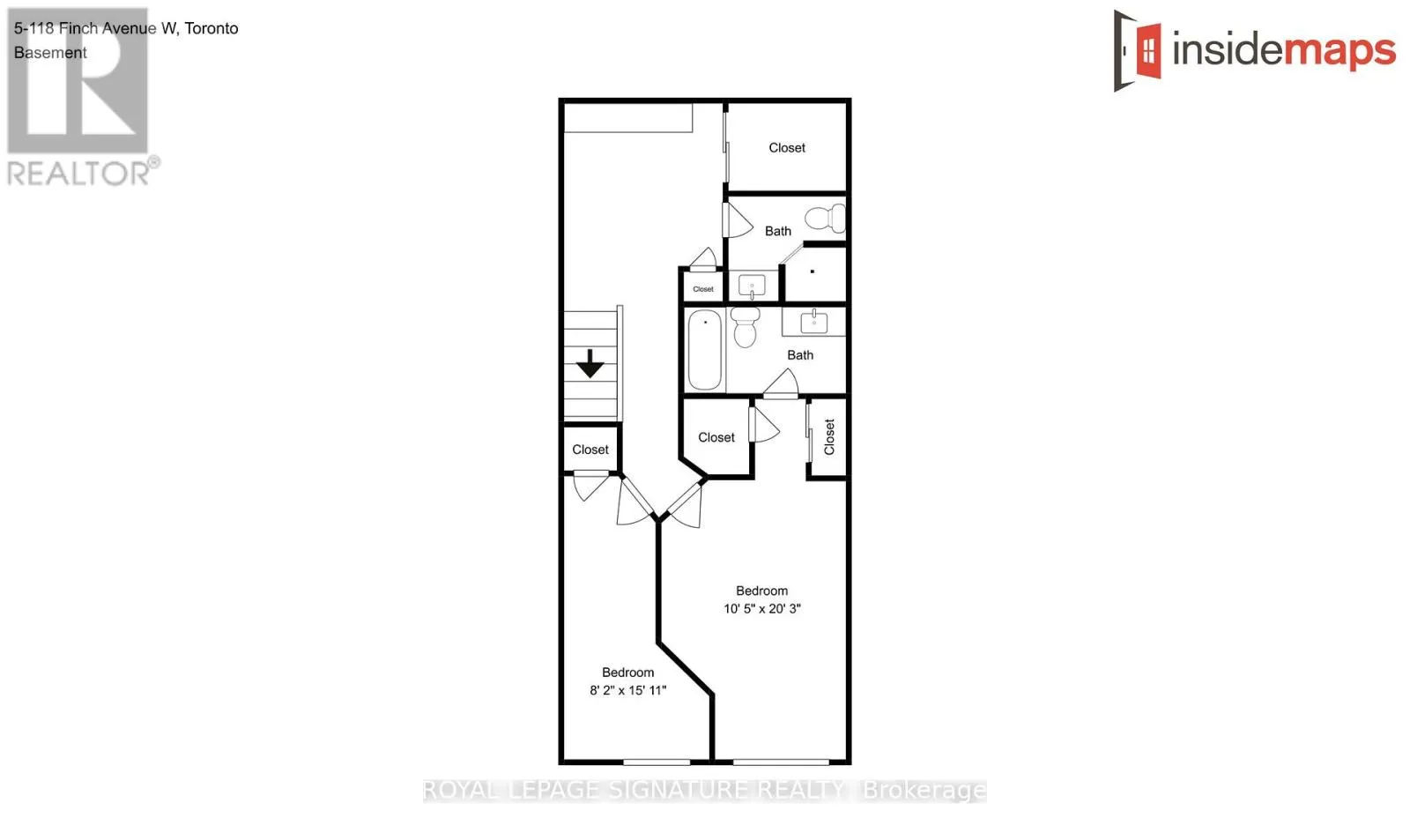
Yonge and Finch OFFERS ANYTIME. Welcome to this beautifully updated two-storey condo townhouse in one of North York's most convenient and sought-after neighborhoods. Enjoy a desirable south-facing exposure with tons of natural light overlooking a park, creating a peaceful setting in the heart of the city. Located just steps to TTC Finch subway station, restaurants, cafés, shopping, parks, and community amenities, this home offers unbeatable urban convenience with a comfortable residential feel. This bright and spacious home features a highly functional layout with generous living space and modern upgrades throughout. The main living area offers an open-concept living and dining space with large windows and patio door to access the balcony. The renovated custom kitchen features quality finishes, ample counter space, and contemporary design-perfect for everyday living and entertaining. Downstairs, the spacious primary bedroom includes a private 4-piece ensuite and his/hers closet space. A second bedroom and versatile den provide flexibility for a home office, guest room, or additional living area. The internal hallway and elevators bring you to your two owned parking spaces underground. Completely move in ready, no renovations needed! Ideal for first-time buyers or professionals seeking comfort, convenience, and an unbeatable North York location! (id:27476)

Property Highlights

MLS® Number
C12948404
Type
Single Family
Community Name
Newtonbrook West
Maintenance Fee
641.15
Ownership Type
Condominium/Strata
Parking Space Total
2

Building

Building Type
Row / Townhouse
Storeys
2.00
Square Footage
1200 - 1399 sqft
Bathrooms Total
3
Bedrooms Above Ground
2
Bedrooms Total
2
Amenities
Storage - Locker Hospital, Park, Public Transit
Exterior Finish
Stucco
Fireplace Present
No
Basement Type
N/A (Finished)
Basement Features
Building Heating Type
Forced air
Heating Fuel
Natural gas
Building Cooling Type
Central air conditioning

Location

Learn more about this property
Listing provided by:
ROYAL LEPAGE SIGNATURE REALTY
MLS® number:
C12948404
Agent:
Joseph Francis De Souza
*Indicates required field
Name is required
Email is required
Please enter a valid phone number (e.g., 416-111-1111).

Street Spotlight - For sale