298 Newton Drive, Toronto, Ontario M2M 2P8

Listed for:
$1,988,000
5 beds
4 baths
Listed 15 days ago
House for rent: 298 Newton Drive, Toronto, Ontario M2M 2P8

View all 36 photos

About

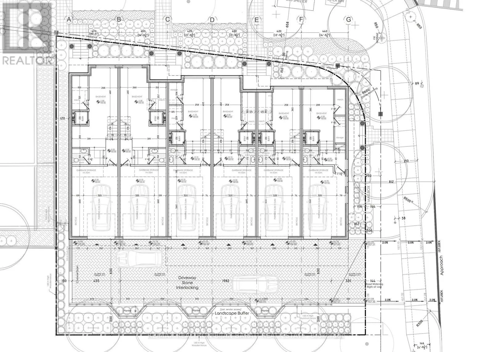
Bayview Ave & Steeles Ave This Two-Storey Solid Brick Home with 4+1 Bedrooms and 4 Washrooms, Situated in a High Exposure Strategic Location Right on the Prime Corner Of Bayview Ave & Newton Dr, With A 101 Feet Exposure On Bayview Ave and 83' on Newton Drive. It Offers a Rare Opportunity for Investors, Developers, or Visionary Homeowners, Suitable for Living, Rental Income, or Great Opportunity for Future Development!! Under the City's Updated Zoning and Intensification Guidelines, the Lot May Support the Creation of Multiple Residential Units, Making It an Ideal Candidate for Multi-Unit Housing **, Income Properties, or a Modern Townhouse Project! ** Possible Options:1) Current Owner Has Obtained the Re-Zoning City Approval for Six (6) 3-Storey Freehold Townhouse Units, with Vehicular Access from Newton Drive and 6 Parking Spaces, (with Ready N.O.A.C from City)! 2) 3-Storey Multi Unit Purpose Built Rental As Per ** CMHC MLI Select **! 3) Under the EHON Intuitive Bylaw, Allowing for the Creation of a 4-Story Stacked Townhouse Community of Up to 19 Units!! 4) For Those Considering a Larger Vision, the Property's Strategic Location and Assembly Potential with Adjacent Lots Enable the Possibility of a 6-Storey Boutique Condo Project, Accommodating Up to 60 Units. The Corner Positioning Allows for Flexible Access and Site Design Options! What Truly Sets This Property Apart Is Its Significant Redevelopment Potential. Buyer/Buyer Agent To Verify All Information and Proposals with City Planner! Whether You're Looking to Live, Invest, or Build, This Is a Unique Opportunity to Secure a High-Exposure/ Strategic Property with Strong Upside in a Growing Urban Area. Opportunities Like This Are Increasingly Rare-Explore the Possibilities and Unlock the Full Potential of This Prime Corner Lot, Convenient Access to Transit, and Key Urban Amenities!! The Proposed Renderings are Attached! (id:27476)

Property Highlights

MLS® Number
C12953238
Type
Single Family
Community Name
Newtonbrook East
Ownership Type
Freehold
Land Size
83.3 x 101.1 FT ; Slight curve at the corner
Parking Space Total
6

Building

Building Type
House
Storeys
2.00
Square Footage
1500 - 2000 sqft
Bathrooms Total
4
Bedrooms Above Ground
4
Bedrooms Total
5
Exterior Finish
Brick
Fireplace Present
No
Basement Type
N/A (Finished)
Basement Features
Building Heating Type
Forced air
Heating Fuel
Natural gas
Building Cooling Type
Central air conditioning

Utilities

Water
Municipal water
Utility Sewer
Sanitary sewer

Room Layout

Primary Bedroom
Second level
5.17 m x 3.78 m
Bedroom 2
Second level
4.57 m x 2.78 m
Bedroom 3
Second level
4.29 m x 2.71 m
Bedroom 4
Second level
3.45 m x 3.34 m
Bedroom 5
Basement
3.93 m x 2.74 m
Recreational, Games room
Basement
7.15 m x 3.82 m
Living room
Main level
5.6 m x 4.26 m
Dining room
Main level
3.97 m x 3.06 m
Kitchen
Main level
5.66 m x 3.01 m

Location

Learn more about this property
Listing provided by:
RE/MAX REALTRON BIJAN BARATI REAL ESTATE
MLS® number:
C12953238
Agent:
Bijan Barati
*Indicates required field
Name is required
Email is required
Please enter a valid phone number (e.g., 416-111-1111).