2724 - 135 Lower Sherbourne Street, Toronto, Ontario M5A 1Y4

Listed for:
$2,250
2 beds
2 baths
Listed 5 days ago
Apartment for rent: 2724 - 135 Lower Sherbourne Street, Toronto, Ontario M5A 1Y4

View all 14 photos

About

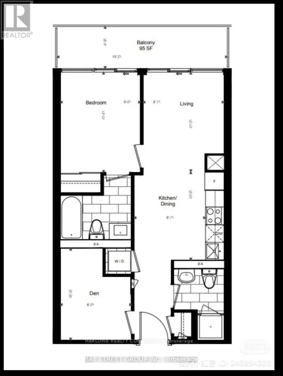
Front/Sherbourne Welcome to this thoughtfully designed suite in one of Toronto's most sought-after neighborhoods. Featuring 9-foot ceilings and laminate flooring throughout, the space feels bright, functional, and comfortable for everyday living. The well-planned layout offers a clear separation between the kitchen and living area, while the living room extends to a private east-facing balcony. The modern kitchen is equipped with built-in appliances and a granite countertop. The primary bedroom features a large window and generous closet space, while a separate den with a door can accommodate a single bed, making it a practical second bedroom option with no wasted space. Located in Time & Space by Pemberton at Front St E and Sherbourne, just steps to St. Lawrence Market, No Frills, the Distillery District, shops, restaurants, and the waterfront, with easy access to the downtown core, the Don Valley Parkway, and TTC. Enjoy premium amenities including an infinity-edge pool, rooftop cabanas, outdoor BBQ area, games room, gym, yoga studio, and party room. A move-in ready 1+den, 2-bath suite in an unbeatable location. (id:27476)

Property Highlights

MLS® Number
C12954622
Type
Single Family
Community Name
Waterfront Communities C8
Ownership Type
Condominium/Strata

Building

Building Type
Apartment
Square Footage
600 - 699 sqft
Bathrooms Total
2
Bedrooms Above Ground
1
Bedrooms Total
2
Amenities
Security/Concierge, Recreation Centre, Exercise Centre, Party Room Hospital, Park, Place of Worship, Public Transit, Schools
Exterior Finish
Concrete
Fireplace Present
No
Basement Type
None
Basement Features
Building Heating Type
Forced air
Heating Fuel
Natural gas
Building Cooling Type
Central air conditioning

Location

Learn more about this property
Listing provided by:
BAY STREET GROUP INC.
MLS® number:
C12954622
Agent:
David G. Lin
*Indicates required field
Name is required
Email is required
Please enter a valid phone number (e.g., 416-111-1111).

Street Spotlight - For rent