3011 - 85 Wood Street, Toronto, Ontario M4Y 0E8

Listed for:
$589,000
2 beds
1 baths
Listed 2 days ago
Apartment for rent: 3011 - 85 Wood Street, Toronto, Ontario M4Y 0E8

View all 12 photos

About

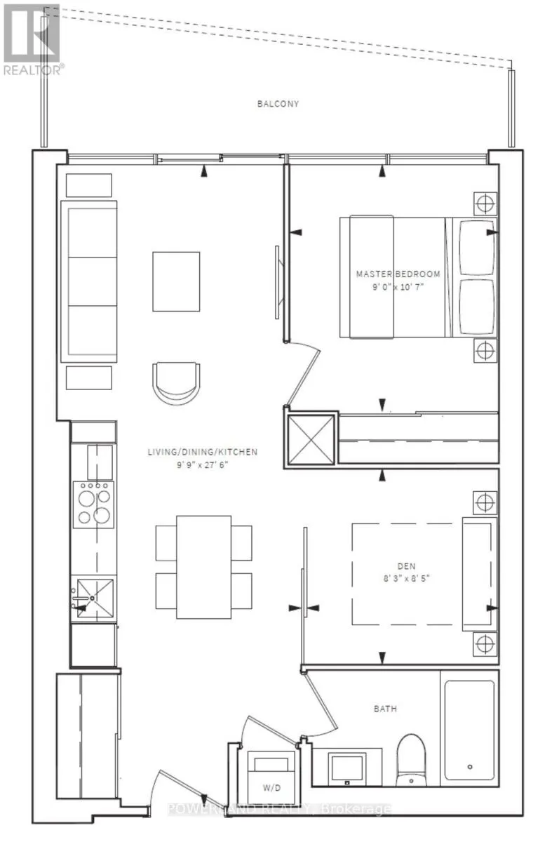
Church & Wood Bright North Facing Unit. Luxury 1 Bedroom and Den, Large Den w/Sliding Door Can Be Used As 2nd bedroom/office. 2 Min Walk To Ttc Subway,4 Min Walk To Toronto Metropolitan University. Right Across Loblaws And Maple Leaf Garden. Steps To U Of T, Dundas Square, Eaton Centre. Enjoy this stunning luxury condo in the heart of the city-your perfect place to call home! (id:27476)

Property Highlights

MLS® Number
C12957416
Type
Single Family
Community Name
Church-Yonge Corridor
Maintenance Fee
374.86
Ownership Type
Condominium/Strata

Building

Building Type
Apartment
Square Footage
500 - 599 sqft
Bathrooms Total
1
Bedrooms Above Ground
1
Bedrooms Total
2
Amenities
Party Room, Security/Concierge
Exterior Finish
Concrete
Fireplace Present
No
Basement Type
None
Basement Features
Building Heating Type
Forced air
Heating Fuel
Other
Building Cooling Type
Central air conditioning

Location

Learn more about this property
Listing provided by:
POWERLAND REALTY
MLS® number:
C12957416
Agent:
Sean Li
*Indicates required field
Name is required
Email is required
Please enter a valid phone number (e.g., 416-111-1111).

Street Spotlight - For sale