1 - 525 Milner Avenue, Toronto, Ontario M1B 2K4

Listed for:
$1,999,000
0 beds
0 baths
Listed 11 days ago
1 - 525 Milner Avenue, Toronto, Ontario M1B 2K4

View all 8 photos

About

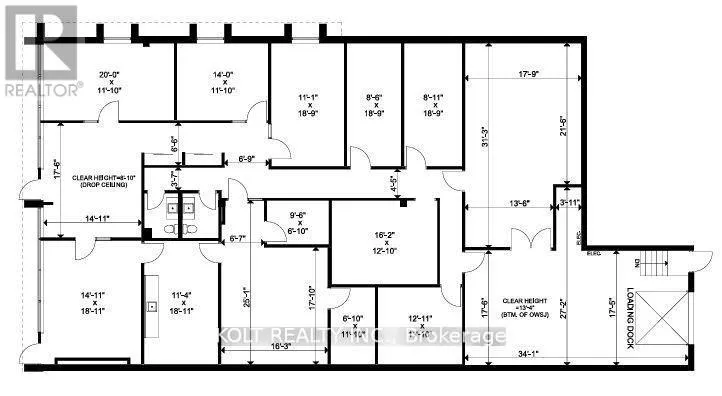
Markham Rd and 401 Rare corner unit in well maintained complex with with immediate access to HWY 401. Ample parking. Approximately 87% professional finished offices with 2 washrooms and kitchenette. Floor plan available. 100%a/c. TTC at door. Lots of room for shipping, 53 ft trailer access to be confirmed by Purchaser. Food or retail uses to obtain written consent of the board. Measurements and permitted uses to be confirmed by purchaser. (id:27476)

Property Highlights

MLS® Number
E12959240
Type
Industrial
Community Name
Malvern

Building

Square Footage
4538 sqft
Fireplace Present
No
Basement Type
Basement Features
Building Heating Type
Forced air
Heating Fuel
Natural gas
Building Cooling Type
Partially air conditioned, Fully air conditioned

Utilities

Water
Municipal water

Location

Learn more about this property
Listing provided by:
KOLT REALTY INC.
MLS® number:
E12959240
Agent:
Brandon Thien Fook Liu
*Indicates required field
Name is required
Email is required
Please enter a valid phone number (e.g., 416-111-1111).