1615 - 181 Dundas Street E, Toronto, Ontario M5A 0N5

Listed for:
$2,050
2 beds
1 baths
Listed 5 days ago
Apartment for rent: 1615 - 181 Dundas Street E, Toronto, Ontario M5A 0N5

View all 14 photos

About

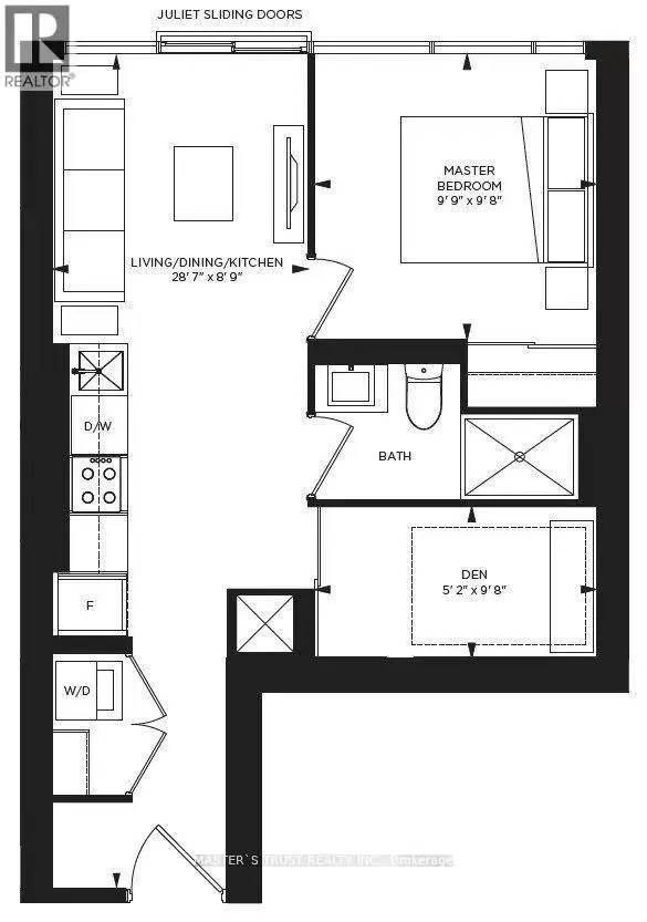
Cross Streets: Dundas & Jarvis. ** Directions: Follow Javis or Dundas. Amazing Location!! Luxurious 1+Den Grid Condo @ The Corner Of Dundas & Jarvis. In The Heart Of Downtown Toronto, Steps To Ryerson University., George Brown College, Dundas Square, Hospital, Metro, Indigo, St Lawrence Market, Restaurant, Canada National Ballet School, Moss Park, And Yonge-Subway Line. It Perfect Location For Young Professional And Students In Downtown Core. Den Is Big Enough As 2nd Br (id:27476)

Property Highlights

MLS® Number
C12986372
Type
Single Family
Community Name
Church-Yonge Corridor
Ownership Type
Condominium/Strata

Building

Building Type
Apartment
Square Footage
500 - 599 sqft
Bathrooms Total
1
Bedrooms Above Ground
1
Bedrooms Total
2
Amenities
Security/Concierge, Exercise Centre Hospital, Public Transit, Schools
Exterior Finish
Concrete
Fireplace Present
No
Basement Type
None
Basement Features
Building Heating Type
Forced air
Heating Fuel
Natural gas
Building Cooling Type
Central air conditioning

Location

Learn more about this property
Listing provided by:
MASTER'S TRUST REALTY INC.
MLS® number:
C12986372
Agent:
Zhenyu Gu
*Indicates required field
Name is required
Email is required
Please enter a valid phone number (e.g., 416-111-1111).

Street Spotlight - For rent