2802 - 7 Mabelle Avenue, Toronto, Ontario M9A 0C9

Listed for:
$599,000
2 beds
2 baths
Listed 4 days ago
Apartment for rent: 2802 - 7 Mabelle Avenue, Toronto, Ontario M9A 0C9

View all 39 photos

About

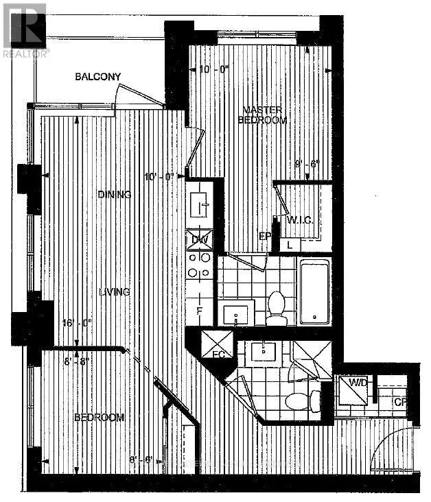
BloorStW&IslingtonAve Welcome to this inviting 2-bedroom, 2-bathroom condo in the heart of Etobicoke! Situated on the 28th floor, this 700 square foot unit is filled with an abundance of gorgeous natural light thanks to expansive windows framing year-round sunsets and serene views of the lake. The open-concept layout creates a warm and welcoming atmosphere, complemented by custom blinds throughout for style and privacy. Enjoy a lifestyle of convenience and comfort with an outstanding selection of building amenities: indoor pool, hot tub, wet and dry saunas, basketball court, theatre room, games room, outdoor BBQs, a party room, and 24/7 concierge. Families will love the dedicated kids spaces including an outdoor splash pad and playground, plus an indoor play area. Stay active in the fully equipped gym, yoga studio, and spin studio. Commuting is effortless with easy access to Islington TTC station and nearby GO Transit. Shops, dining, and everyday conveniences are just steps away, making this home perfect for both families and professionals seeking comfort and accessibility. (id:27476)

Property Highlights

MLS® Number
W12988742
Type
Single Family
Community Name
Islington-City Centre West
Maintenance Fee
554.58
Ownership Type
Condominium/Strata

Building

Building Type
Apartment
Square Footage
700 - 799 sqft
Bathrooms Total
2
Bedrooms Above Ground
2
Bedrooms Total
2
Amenities
Storage - Locker
Exterior Finish
Brick, Concrete
Fireplace Present
Yes
Basement Type
None
Basement Features
Building Heating Type
Forced air
Heating Fuel
Natural gas
Building Cooling Type
Central air conditioning

Location

Learn more about this property
Listing provided by:
HOMELIFE/BAYVIEW REALTY INC.
MLS® number:
W12988742
Agent:
Amanda S Incognito-ciminelli
*Indicates required field
Name is required
Email is required
Please enter a valid phone number (e.g., 416-111-1111).

Street Spotlight - For sale