1517 - 297 College Street, Toronto, Ontario M5T 0C2

Listed for:
$649,990
2 beds
1 baths
Listed 4 days ago
Apartment for rent: 1517 - 297 College Street, Toronto, Ontario M5T 0C2

View all 18 photos

About

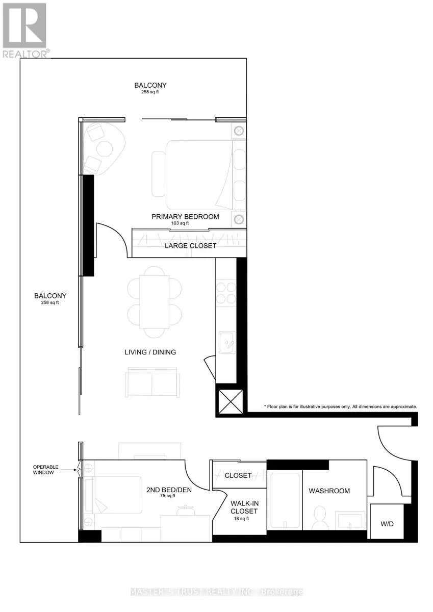
Cross Streets: College & Spadina. ** Directions: COLLEGE ST. / SPADINA. Welcome to Tribute's "The College" Condo! A Bright & Spacious Functional One Bedroom + Den With 9' Ceiling And Floor To Ceiling Windows. A Rare Unit (Only 2 Units In The Building )That Have This Unique Configuration With An Unobstructed Views In Every Room. The Feature Of This Unit Is That It Has A Den Which Already Includes A Door , An Operable Window & A Walk-In Closet, So It Can Be Fully Used As A Second Bedroom. Huge L shape Balcony. Kitchen With Great Amount Of Storage Space. 2 Mirrored Closets .4 Pieces Bath. This Building Is Ideally Located With Walking Distance To U Of T, OCAD, Public Transit TTC --Queen's Park Subway Station, Spadina St Car, Hospitals, Schools, Library, Kensington Market , Chinatown & World-Class Dining( 99 Walking Score & 100 Transit Score.) . Top-Tire Amenities : 24-Hour Concierge, a Gym, Theatre, Billiards, A Roof-Top BBQ Terrace, Guest Suites and More. The Condo Standout Feature Is : Directly Attached T&T Supermarket And TD Bank Which Offers Unmatched Convenience. Don't Miss Out This Downtown Living At One Of Toronto's Most Vibrant Neighborhoods. (id:27476)

Property Highlights

MLS® Number
C12989868
Type
Single Family
Community Name
Kensington-Chinatown
Maintenance Fee
563.09
Ownership Type
Condominium/Strata

Building

Building Type
Apartment
Square Footage
600 - 699 sqft
Bathrooms Total
1
Bedrooms Above Ground
1
Bedrooms Total
2
Amenities
Public Transit
Exterior Finish
Concrete
Fireplace Present
No
Basement Type
None
Basement Features
Building Heating Type
Forced air
Heating Fuel
Natural gas
Building Cooling Type
Central air conditioning

Location

Learn more about this property
Listing provided by:
MASTER'S TRUST REALTY INC.
MLS® number:
C12989868
Agent:
Connie Sun
*Indicates required field
Name is required
Email is required
Please enter a valid phone number (e.g., 416-111-1111).

Street Spotlight - For sale