45 Andrew Avenue, Toronto, Ontario M1M 3H1

Listed for:
$799,000
4 beds
2 baths
Listed 3 days ago
House for rent: 45 Andrew Avenue, Toronto, Ontario M1M 3H1

View all 50 photos

About

Cross Streets: St Clair to Andrew. ** Directions: Lock box on side door, please leave lights on. If you've been waiting for the right home in the right neighbourhood-this is it. Welcome to 45 Andrew Avenue in the well established Cliffcrest community. Close to the Scarborough Bluffs & trails. Ideally situated towards the end of the street where green space abounds. First time to ever hit the market & just in time for Spring. This is an excellent opportunity for buyers ready to make a move. Large lot, fantastic oversized 2 car garage. Walking distance to schools, parks, playgrounds, making everyday living both convenient and enjoyable. Appreciate a functional layout offering 3 + 1 bedrooms, 2 bathrooms, separate side entrance to basement offering plenty of windows and loads of space. This warm welcoming home has been lovingly maintained, updated windows, quality hardwood floors, lovely built in cabinet in dining room. Primary bedroom has hardwood under broadloom. Lower level features a large finished living room, bedroom and bathroom and huge workshop area affording space for additional rooms. Vast backyard-perfect for summer BBQs, entertaining, or enjoying your morning coffee on the patio with seamless outdoor living. More to Love: Built in 1955, this home offers solid construction & great location. You'll enjoy all the conveniences nearby, schools, shops and restaurants, community events, and an abundance of parks, trails, and green space that make this such a special place to call home. (id:27476)

Property Highlights

MLS® Number
E12991126
Type
Single Family
Community Name
Cliffcrest
Ownership Type
Freehold
Land Size
50 x 135 FT
Parking Space Total
6

Building

Building Type
House
Storeys
1.00
Square Footage
700 - 1100 sqft
Bathrooms Total
2
Bedrooms Above Ground
3
Bedrooms Total
4
Amenities
Public Transit, Schools
Exterior Finish
Brick
Fireplace Present
Yes
Basement Type
N/A (Finished)
Basement Features
Building Heating Type
Forced air
Heating Fuel
Natural gas
Building Cooling Type
Central air conditioning

Utilities

Water
Municipal water
Utility Sewer
Sanitary sewer

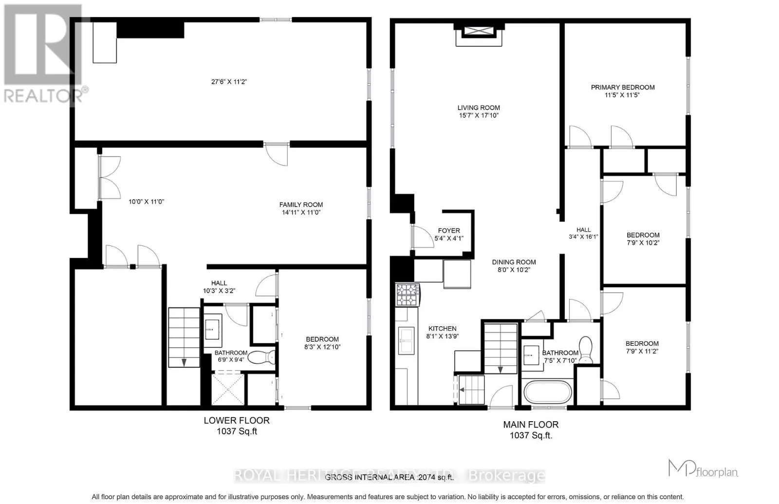
Room Layout

Family room
Basement
7.35 m x 3.05 m
Bedroom 4
Basement
3.68 m x 2.53 m
Laundry room
Basement
3.68 m x 2.53 m
Workshop
Basement
8.41 m x 3.41 m
Living room
Main level
5.21 m x 4.78 m
Dining room
Main level
3.1 m x 2.44 m
Kitchen
Main level
3.96 m x 2.44 m
Primary Bedroom
Main level
3.5 m x 3.5 m
Bedroom 2
Main level
3.1 m x 2.4 m
Bedroom 3
Main level
3.41 m x 2.4 m

Location

Learn more about this property
Listing provided by:
ROYAL HERITAGE REALTY LTD.
MLS® number:
E12991126
Agent:
Louise Tilly
*Indicates required field
Name is required
Email is required
Please enter a valid phone number (e.g., 416-111-1111).

Community Spotlight: Homes For sale in Your Neighborhood