13 - 95 Eastwood Park Gardens, Toronto, Ontario M8W 0B9

Listed for:
$739,900
2 beds
3 baths
Listed 1 day ago
Row / Townhouse for rent: 13 - 95 Eastwood Park Gardens, Toronto, Ontario M8W 0B9

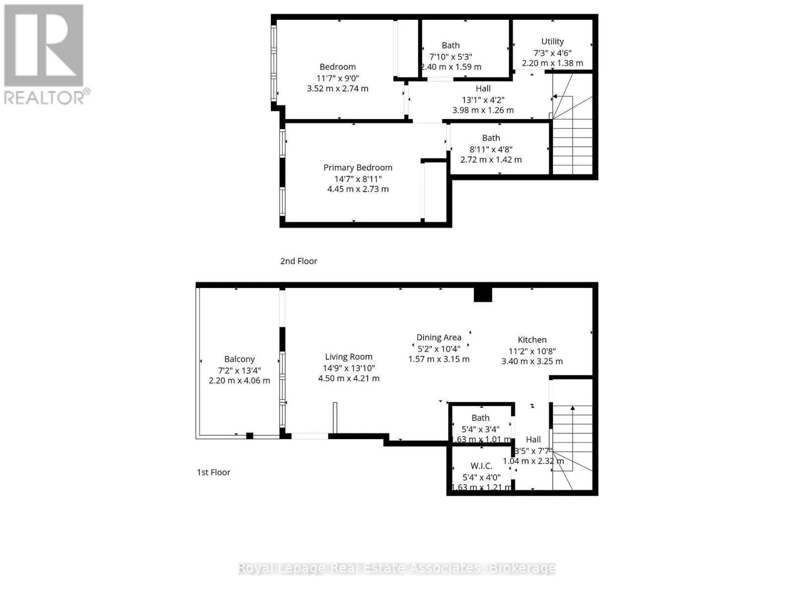
View all 28 photos

About

Cross Streets: Lakeshore Blvd W & Browns Line. ** Directions: Browns Line/ Lakeshore Blvd W/Long Branch Ave. This stylish 2-storey condo townhouse in the heart of Long Branch offers the perfect blend of urban convenience, walkability, and an outdoor lifestyle. Just a short walk to the lake, parks (including Marie Curtis and its beach!), and waterfront trails, this home is also only a 10 min walk to Long Branch GO, making commuting downtown effortless. Thoughtfully designed with 981 sq ft of bright, functional space, this 2-bedroom, 2.5-bath home features an open-concept main level. Tucked along the outer edge of the complex, this suite enjoys a clearer view and beautiful evening light through its west-facing windows. The private terrace perfect for relaxing evenings and summer entertaining. The modern kitchen is finished with quartz countertops and a sleek backsplash. Upgrades large and small make this a charming, move-in-ready option: next to the kitchen and under the stairs, the owners have added a walk-in storage area, crucial for many uses. You'll find upgraded light fixtures, California shutters in the living room, a roller blind on the patio door, and cordless cellular shades in the bedrooms. This is a welcoming, community-oriented complex centred around a playground and green space. The owners love the ability to walk to cafes (Terminal 3), bakeries (Happy Bakers & Sourdough Garden), restaurants (850 Pizza), yoga studios (Solis), and daily essentials. Sherway Gardens and major highways are a 5 min drive. Enjoy the convenience of underground parking while paying a low maintenance fee. Visitor parking is available right out front of the home. Come be a part of one of Etobicoke's most vibrant and growing communities! (id:27476)

Property Highlights

MLS® Number
W13001512
Type
Single Family
Community Name
Long Branch
Maintenance Fee
320.53
Ownership Type
Condominium/Strata
Parking Space Total
1

Building

Building Type
Row / Townhouse
Storeys
2.00
Square Footage
900 - 999 sqft
Bathrooms Total
3
Bedrooms Above Ground
2
Bedrooms Total
2
Exterior Finish
Stone, Brick
Fireplace Present
No
Basement Type
None
Basement Features
Building Heating Type
Coil Fan
Heating Fuel
Natural gas
Building Cooling Type
Central air conditioning

Location

Learn more about this property
Listing provided by:
Royal Lepage Real Estate Associates
MLS® number:
W13001512
Agent:
Simon Tham
*Indicates required field
Name is required
Email is required
Please enter a valid phone number (e.g., 416-111-1111).