197 Queen Street, Trent Hills, Ontario H3B 3M5

Listed for:
$499,999
3 beds
1 baths
Listed 7 days ago
House for rent: 197 Queen Street, Trent Hills, Ontario H3B 3M5

View all 28 photos

About

Cross Streets: Queen / Church. ** Directions: as per google map. FULLY renovated Cozy Home Four Season cottage never lived after renovated with a Charming Getaway Property Featuring 231 Foot WATER Frontage! Close To Amenities, Walking Distance to Downtown. The Quaint Bungalow Home Features 3 Bedrooms, Kitchen, Living Room, Dining Room and Downtown. The Quaint Bungalow Home Features 3 Bedrooms, Kitchen, Living Room, Dining Room and Bathroom/Laundry Room. Outdoors, Your Waterfront Property Features Multiple Points of Access to the Water. Enjoy Sitting in the Gazebo Entertaining Friends, or Perhaps Admiring the Water Views From Your Covered Hot Tub. Stroll Down to the End of the Property to Sunbathe on Your Private Beach Area. If You've Always Dreamt of Having a Place on the Water, Now is the Time and This Could Be the Place. Hot water tank is OWNED and brand new purchased in 2024 as well as Stove and Rangehood. (id:27476)

Property Highlights

MLS® Number
X12849338
Type
Single Family
Community Name
Campbellford
Ownership Type
Freehold
Land Size
231 x 33.3 FT ; 132.52x118.49x33.32x30.37x203.56x30.38|under 1/2 acre
Parking Space Total
2

Building

Building Type
House
Storeys
1.50
Square Footage
0 - 699 sqft
Bathrooms Total
1
Bedrooms Above Ground
3
Bedrooms Total
3
Amenities
Beach
Exterior Finish
Aluminum siding
Fireplace Present
No
Basement Type
None
Basement Features
Building Heating Type
Other
Heating Fuel
Building Cooling Type
None

Utilities

Water
Municipal water
Utility Sewer
Sanitary sewer

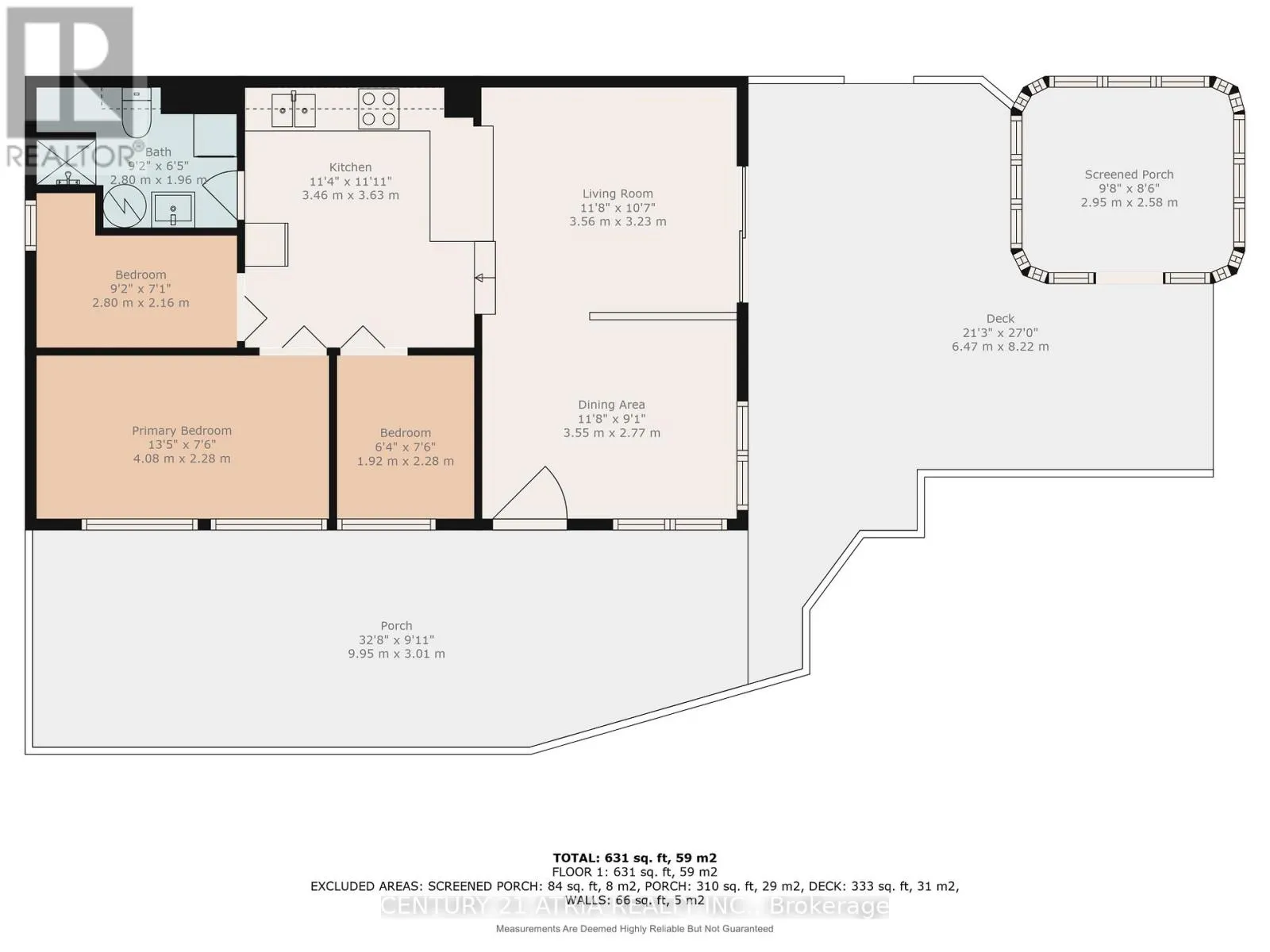
Room Layout

Living room
Main level
3.39 m x 2.6 m
Dining room
Main level
3.41 m x 2.97 m
Kitchen
Main level
3.33 m x 3.09 m
Primary Bedroom
Main level
3.83 m x 2.16 m
Bedroom 2
Main level
2.56 m x 1.41 m
Bedroom 3
Main level
2.16 m x 1.72 m

Location

Learn more about this property
Listing provided by:
CENTURY 21 ATRIA REALTY INC.
MLS® number:
X12849338
Agent:
Karen Hui
*Indicates required field
Name is required
Email is required
Please enter a valid phone number (e.g., 416-111-1111).