25 Fire Route 330 Drive, Trent Lakes, Ontario K0M 1R0

Listed for:
$499,000
0 beds
0 baths
Listed 62 days ago
25 Fire Route 330 Drive, Trent Lakes, Ontario K0M 1R0

View all 33 photos

Learn more about this property
Listing provided by:
Royal LePage Lakes of Haliburton
MLS® number:
X12404026
Agent:
Steve Brand
*Indicates required field
Name is required
Email is required
Please enter a valid phone number (e.g., 416-111-1111).

About

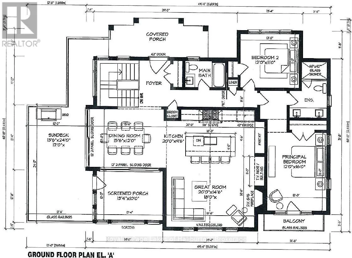
Cross Streets: CR 507. ** Directions: Gooderham take Contau Lk Rd to Fortesque Lk Rd to FR 330/Northshore Road to 25 FR 330. Fortesque Lake. A pristine building lot ready to go to final permit stage. A rare find on any lake. Fabulous southern exposure. Hard-packed sandy beach. Shore Road Allowance owned. New septic installed in 2020 and is sized for 4 bedrooms. The Sellers submitted a pre-consultation application 05FEB25. The Municipality has responded 04JUN25. The Sellers have engaged the services of a planning consultant who has prepared a detailed plan to build a year-round home or cottage on water. It would be very easy to take over this project and proceed to the site plan application stage. Floor plans are available. The old cottage was removed on the 30th of May 2025 by a licensed contractor under a proper permit. A logical next step would be to install a temporary hydro service. Quote provided 05JUN25. The travel trailer. generator and utility trailer are excluded. This is a ready to go building opportunity that is less than 300 feet off a year-round road. Easy year-round access. Fortescue Lake is a very low cottage density lake with many interesting bays to explore. It is south of the villages of Gooderham and Irondale along the Fortescue Lake Road. The deepest spot is 90ft and the average depth is 38 ft. Steps away from a public access ideal for launching small boats. Great fishing. A great area for year-round off-road sports. Just over 2 hours from the GTA (id:27476)

Property Highlights

MLS® Number
X12404026
Type
Vacant Land
Community Name
Trent Lakes
Land Size
200.02 x 101 FT|under 1/2 acre

Building

Amenities
Schools, Place of Worship
Fireplace Present
No
Basement Type
Basement Features
Building Heating Type
Heating Fuel
Building Cooling Type

Utilities

Utility Sewer
Septic System

Location

Community Spotlight: Homes For sale in Your Neighborhood