45 Fire Route 223, Trent Lakes, Ontario K0L 1J0

Listed for:
$2,299,900
3 beds
2 baths
Listed 52 days ago
House for rent: 45 Fire Route 223, Trent Lakes, Ontario K0L 1J0

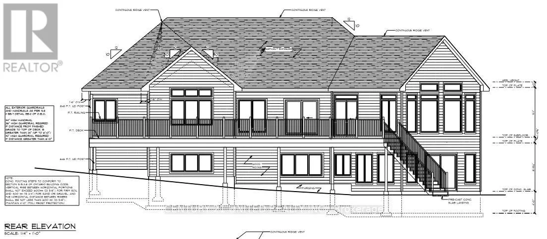
View all 50 photos

About

Cross Streets: County Rd 507/Beaver Lk/FR 220/ FR223. ** Directions: CR 507, turn right on Beaver Lake Rd, turn right on Fire Route 220 to Fire Route 223. The Jewel of the Catchacoma/Mississagua 7-Lake System. This rare 1.12-acre waterfront point property offers approximately 430 feet of pristine shoreline, exceptional privacy, and expansive panoramic lake views.Construction is actively underway, transforming this exceptional setting into a remarkable new cottage opportunity. Significant work has already been completed. As the build continues to progress, buyers may have the opportunity to personalize certain design elements and finishes depending on the stage of construction. There will be extra costs above the list price.Thoughtfully positioned to maximize the natural landscape, the property features a spacious level plateau ideal for the main cottage footprint, a walkout lower-level concept, and a gentle slope leading to another large level area at the water's edge. Enjoy all-day sun with southern exposure, breathtaking western sunsets from the beach, and deep water off the point ideal for swimming and boating.Set on a crystal-clear, deep, virtually weed-free lake system known for dramatic granite outcrops and towering pines, this location offers both natural beauty and convenience. Two full-service marinas are nearby, including one with LCBO access. Just minutes from Beaver Lake Road and within a reasonable drive from the GTA, this exceptional four-season waterfront property presents a rare opportunity to secure a premium waterfront retreat already well underway.Building plans, conceptual renderings, and current construction photos are available for review. Construction is ongoing and specifications, layouts, features, and finishes may change as work progresses. (id:27476)

Property Highlights

MLS® Number
X12920146
Type
Single Family
Community Name
Trent Lakes
Ownership Type
Freehold
Land Size
430 x 295.5 FT|1/2 - 1.99 acres
Parking Space Total
5

Building

Building Type
House
Square Footage
0 - 699 sqft
Bathrooms Total
2
Bedrooms Above Ground
3
Bedrooms Total
3
Amenities
Marina, Place of Worship
Fireplace Present
No
Basement Type
N/A, N/A (Unfinished)
Basement Features
Separate entrance
Building Heating Type
Other
Heating Fuel
Building Cooling Type
None

Location

Learn more about this property
Listing provided by:
CENTURY 21 UNITED REALTY INC.
MLS® number:
X12920146
Agent:
Randy Ross
*Indicates required field
Name is required
Email is required
Please enter a valid phone number (e.g., 416-111-1111).

Community Spotlight: Homes For sale in Your Neighborhood