52 Ridgewood Drive, Turkey Point, Ontario N0E 1W0

Listed for:
$649,000
3 beds
1 baths
Listed 90 days ago
House for rent: 52 Ridgewood Drive, Turkey Point, Ontario N0E 1W0

View all 45 photos

Learn more about this property
Listing provided by:
RE/MAX ERIE SHORES REALTY INC. BROKERAGE
MLS® number:
40774774
Agent:
Ryan Vandenbussche
*Indicates required field
Name is required
Email is required
Please enter a valid phone number (e.g., 416-111-1111).

About

Turkey Pt Rd South to Cedar Drive turn right, to Ridgeway turn right to #52. Welcome to 52 Ridgewood Dr, a 3-bedroom, 1-bathroom cottage in Turkey Point, Ontario, family-owned for over 50 years and located on a quiet side street. It's steps from public access to long sandy beaches on Lake Erie, the new pickleball courts, playpark, and pavilion, plus the Turkey Point Marina for world-class fishing & water sports. Turkey Pt includes extensive hiking, biking, and walking trails. Upgrades feature a roof (2019), windows (2020) and 200-amp electrical panel (2020). The detached barn/garage/bunkie has a 60-amp panel for storage or conversion to additional space. This is a great investment in property located in S/W Ontario to build your family memories. Enjoy the best of Norfolk County with local produce stands, wineries, and small-town charm. (id:27476)

Property Highlights

MLS® Number
40774774
Type
Single Family
Ownership Type
Freehold
Land Size
0.17 ac|under 1/2 acre
Parking Space Total
6

Building

Building Type
House
Storeys
1.00
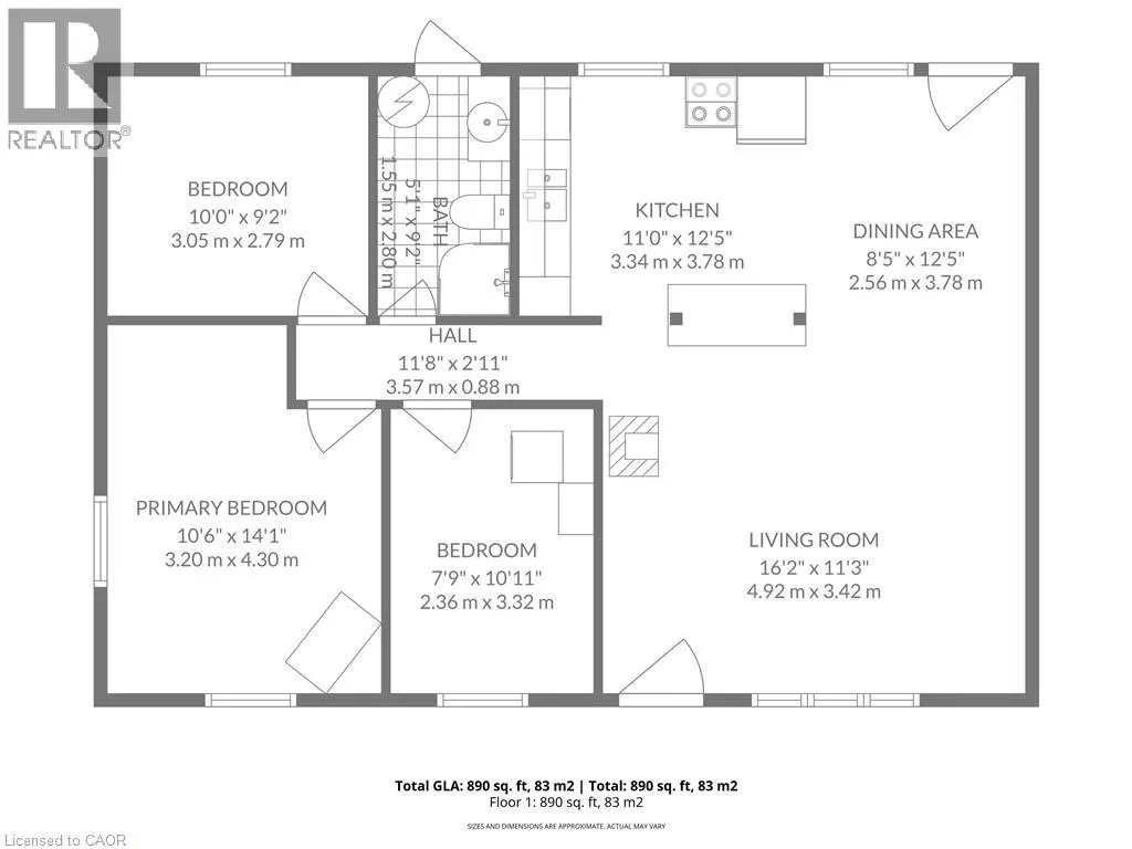
Square Footage
890 sqft
Bathrooms Total
1
Bedrooms Above Ground
3
Bedrooms Total
3
Amenities
Beach, Marina, Park, Place of Worship, Playground
Exterior Finish
Vinyl siding
Fireplace Present
No
Basement Type
Crawl space (Unfinished)
Basement Features
Building Heating Type
Heating Fuel
Building Cooling Type

Utilities

Water
Sand point
Utility Sewer
Septic System

Room Layout

3pc Bathroom
Main level
5'1'' x 9'2''
Bedroom
Main level
10'0'' x 9'2''
Primary Bedroom
Main level
10'6'' x 14'1''
Bedroom
Main level
7'9'' x 10'11''
Living room
Main level
16'2'' x 11'3''
Dining room
Main level
8'5'' x 12'5''
Kitchen
Main level
11'0'' x 12'5''

Location