1339 Rapids Road, Tweed), Ontario K0K 3J0

Listed for:
$559,000
4 beds
2 baths
Listed 121 days ago
House for rent: 1339 Rapids Road, Tweed), Ontario K0K 3J0

View all 41 photos

Learn more about this property
Listing provided by:
MLS® number:
X12393788
Agent:
Bryan Justin Jaskolka
*Indicates required field
Name is required
Email is required
Please enter a valid phone number (e.g., 416-111-1111).

About

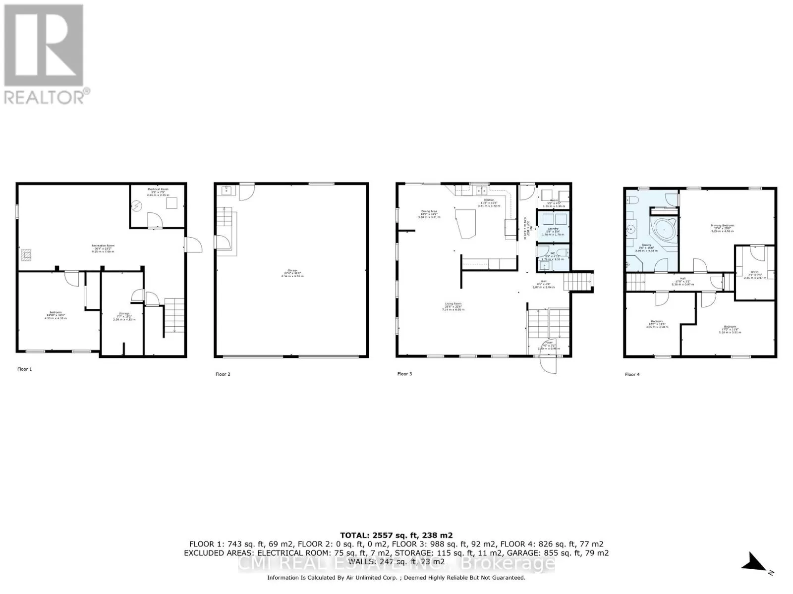
Crookston rd / Rapids rd Welcome to this charming, detached side-split home, perfectly situated on over an acre of serene land. This spacious property offers a peaceful retreat with a two-car garage. Inside, the main floor features a bright and airy open-concept kitchen and dining area, a large family room, a cozy den, and a convenient main-floor laundry room. Upstairs, you'll find three generously sized bedrooms. The master suite is a true sanctuary with a five-piece ensuite bathroom and a walk-in closet. The lower level provides even more living space, with a recreation room and an additional bedroom. Enjoy the best of both worlds, with nature right outside your door and Stoco Lake and all amenities just minutes away. This is your chance to embrace a tranquil lifestyle. (id:27476)

Property Highlights

MLS® Number
X12393788
Type
Single Family
Community Name
Hungerford (Twp)
Ownership Type
Freehold
Land Size
170.9 x 330.3 FT
Parking Space Total
8

Building

Building Type
House
Square Footage
1500 - 2000 sqft
Bathrooms Total
2
Bedrooms Above Ground
3
Bedrooms Total
4
Exterior Finish
Brick
Fireplace Present
Yes
Basement Type
Partial
Basement Features
Building Heating Type
Forced air
Heating Fuel
Propane
Building Cooling Type
Central air conditioning

Utilities

Utility Sewer
Septic System

Room Layout

Recreational, Games room
Lower level
9.25 m x 7.06 m
Bedroom
Lower level
4.53 m x 4.35 m
Utility room
Lower level
2.3 m x 4.62 m
Foyer
Main level
2.3 m x 0.95 m
Living room
Main level
7.14 m x 6.9 m
Dining room
Main level
3.18 m x 3.71 m
Kitchen
Main level
3.41 m x 4.72 m
Den
Main level
1.75 m x 1.35 m
Laundry room
Main level
1.76 m x 1.76 m
Bathroom
Main level
1.76 m x 1.51 m
Bathroom
Upper Level
2.89 m x 4.58 m
Primary Bedroom
Upper Level
5.29 m x 4.56 m
Bedroom 2
Upper Level
5.18 m x 3.51 m
Bedroom 3
Upper Level
3.85 m x 3.5 m

Location

Community Spotlight: Homes For sale in Your Neighborhood