4 Galloway Crescent, Uxbridge, Ontario L9P 1W8

Listed for:
$1,559,900
5 beds
4 baths
Listed 10 days ago
House for rent: 4 Galloway Crescent, Uxbridge, Ontario L9P 1W8

View all 46 photos

About

Cross Streets: Bolton Dr & 6th Concession. ** Directions: Take Bolton Dr & go North onto Galloway Cres. Set in Uxbridge's most coveted neighbourhood, this home is positioned on a private 61x113 ft lot backing onto protected green space. Occupying a premier position at the top of the hill-where rare backyard privacy meets open sky and long views-the addition above the garage becomes a defining feature, allowing a private in-law or young-adult suite to support multi-generational living, or to remain an expansive family great room-a rare way for families to share one roof while easing the cost of living, without sacrificing space or independence. With over 4,000 square feet of finished living space, the home also stands confidently on its own as a substantial single-family residence. Sitting at the heart of the home, the fully renovated kitchen features Cambria quartz countertops, stainless steel appliances, a large centre island, and a dedicated coffee bar and pantry - connecting everyday living with both indoor and outdoor spaces. French doors link the formal living room to a dramatic foyer, where a central skylight brings natural light down through the core of the home. A remodelled main-floor bath (2025) and upgraded laundry room (2025) bring recent updates to two of the home's most used spaces. Upstairs, four well-sized bedrooms and a comfortable great room establish a distinct private level for family and guests. The added loft is complete with vaulted ceilings, skylights, a gas FP, hardwood floors, & a kitchenette/wet bar. A second-level balcony extends along the back of the addition, offering separate access and pretty views. Throughout the home, restored oak hardwood floors (2020), smooth ceilings, pot lights, and new windows (2023), speak to the level of care invested over time. The finished basement offers a 5th bedroom, bathroom & games room. Just steps from the Quaker Trail and mins from Uxbridge's off-leash dog park, schools, and historic downtown, this home offers rare backyard privacy and elevated views within one of the town's most established pockets. (id:27476)

Property Highlights

MLS® Number
N12806860
Type
Single Family
Community Name
Uxbridge
Ownership Type
Freehold
Land Size
61 x 113.2 FT|under 1/2 acre
Parking Space Total
6

Building

Building Type
House
Storeys
2.00
Square Footage
3000 - 3500 sqft
Bathrooms Total
4
Bedrooms Above Ground
4
Bedrooms Total
5
Amenities
Fireplace(s)
Exterior Finish
Brick
Fireplace Present
Yes
Basement Type
N/A (Finished)
Basement Features
Building Heating Type
Forced air
Heating Fuel
Natural gas
Building Cooling Type
Central air conditioning

Utilities

Water
Municipal water
Utility Sewer
Sanitary sewer

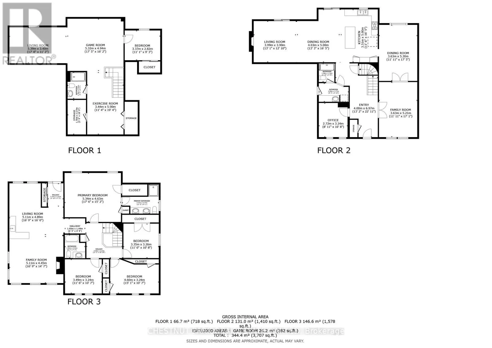
Room Layout

Bedroom
Second level
3.35 m x 3.26 m
Bedroom
Second level
3.49 m x 3.24 m
Loft
Second level
5.11 m x 9.34 m
Primary Bedroom
Second level
5.34 m x 4.63 m
Bedroom
Second level
4.6 m x 3.24 m
Bedroom
Basement
3.37 m x 2.82 m
Recreational, Games room
Basement
5.32 m x 8.34 m
Living room
Main level
5.21 m x 3.63 m
Dining room
Main level
5.3 m x 3.63 m
Kitchen
Main level
5 m x 3.51 m
Eating area
Main level
5 m x 4.3 m
Family room
Main level
3.99 m x 3.9 m
Office
Main level
2.72 m x 3.24 m
Laundry room
Main level
2.83 m x 1.77 m

Location

Learn more about this property
Listing provided by:
CHESTNUT PARK REAL ESTATE LIMITED
MLS® number:
N12806860
Agent:
Kelsey Schoenrock
*Indicates required field
Name is required
Email is required
Please enter a valid phone number (e.g., 416-111-1111).

Community Spotlight: Homes For sale in Your Neighborhood