201 - 385 Connie Crescent, Vaughan, Ontario L4K 5R2

Listed for:
$16
0 beds
2 baths
Listed 27 days ago
Offices for rent: 201 - 385 Connie Crescent, Vaughan, Ontario L4K 5R2

View all 14 photos

Learn more about this property
Listing provided by:
VANGUARD REALTY BROKERAGE CORP.
MLS® number:
N12601792
Agent:
Carmine Felice Infante
*Indicates required field
Name is required
Email is required
Please enter a valid phone number (e.g., 416-111-1111).

About

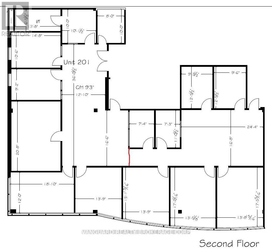
Dufferin St & Highway 7 Excellent Quality Office Space (12 Offices). Different Options Available, Professionally Finished Space. Plenty Of Offices/ Open Space, Very Bright Space With Full Windows, Ample Free Surface Parking. Exposed To Dufferin Street, Close Access To Highway 407 And Highway 7. Size To Be Verified. (id:27476)

Property Highlights

MLS® Number
N12601792
Type
Office
Community Name
Concord

Building

Building Type
Offices
Square Footage
4987 sqft
Bathrooms Total
2
Amenities
Highway, Public Transit
Fireplace Present
No
Basement Type
Basement Features
Building Heating Type
Forced air
Heating Fuel
Natural gas
Building Cooling Type
Fully air conditioned

Utilities

Water
Municipal water

Location