136 - 9580 Islington Avenue, Vaughan, Ontario L4H 5E8

Listed for:
$2,450
2 beds
3 baths
Listed 20 days ago
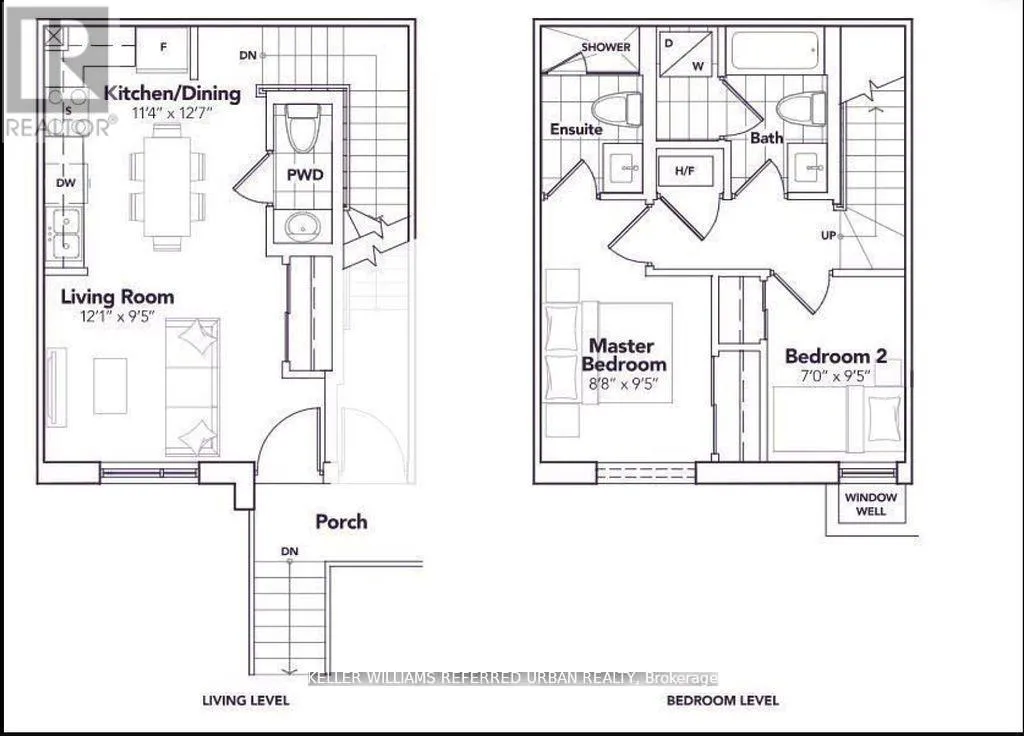
Row / Townhouse for rent: 136 - 9580 Islington Avenue, Vaughan, Ontario L4H 5E8

View all 9 photos

Learn more about this property
Listing provided by:
KELLER WILLIAMS REFERRED URBAN REALTY
MLS® number:
N12615032
Agent:
Irfan Khan
*Indicates required field
Name is required
Email is required
Please enter a valid phone number (e.g., 416-111-1111).

About

Islington/Rutherford Stunning Stacked Townhome in Sonoma Heights! Freshly painted, open-concept layout with modern finishes and stainless steel appliances. Features 2 bedrooms, 2.5 bathrooms, and 1 underground parking spot. Prime location near Highways 427 & 400, shops, restaurants, banks, walk-in clinic, and public transit-everything you need just steps away! Tenant pays utilities and provides insurance. (id:27476)

Property Highlights

MLS® Number
N12615032
Type
Single Family
Community Name
Sonoma Heights
Ownership Type
Condominium/Strata
Parking Space Total
1

Building

Building Type
Row / Townhouse
Storeys
2.00
Square Footage
900 - 999 sqft
Bathrooms Total
3
Bedrooms Above Ground
2
Bedrooms Total
2
Exterior Finish
Brick
Fireplace Present
Yes
Basement Type
None
Basement Features
Building Heating Type
Forced air
Heating Fuel
Natural gas
Building Cooling Type
Central air conditioning

Location

Street Spotlight - For rent