3912 - 28 Interchange Way, Vaughan, Ontario L4K 0P8

Listed for:
$2,450
2 beds
2 baths
Listed 8 days ago
Apartment for rent: 3912 - 28 Interchange Way, Vaughan, Ontario L4K 0P8

View all 15 photos

About

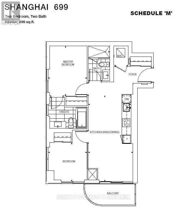
HWY 400/HWY 7 Welcome to festival condo! This bright south west corner suite offers 699 sqft of interior space with 2 Bedrooms and 2 bathrooms, plus a generously sized balconies perfect for panoramic views. The functional layout features a spacious open-concept living, dining, and kitchen area with build in appliances. A primary suite with ensuite bathroom, and a secondary bedroom. Located in the heart of Vaughan metropolitan centre, just steps to the subway, Ikea, costco, vaughan mills, cineplex, wonderland and more. One underground parking spot included. (id:27476)

Property Highlights

MLS® Number
N12766562
Type
Single Family
Community Name
Vaughan Corporate Centre
Ownership Type
Condominium/Strata
Parking Space Total
1

Building

Building Type
Apartment
Square Footage
600 - 699 sqft
Bathrooms Total
2
Bedrooms Above Ground
2
Bedrooms Total
2
Amenities
Security/Concierge
Exterior Finish
Concrete
Fireplace Present
No
Basement Type
None
Basement Features
Building Heating Type
Forced air
Heating Fuel
Natural gas
Building Cooling Type
Central air conditioning

Location

Learn more about this property
Listing provided by:
REMAX YC REALTY
MLS® number:
N12766562
Agent:
David Kim
*Indicates required field
Name is required
Email is required
Please enter a valid phone number (e.g., 416-111-1111).

Street Spotlight - For rent