Lph02 - 120 Eagle Rock Way, Vaughan, Ontario L6A 5C2

Listed for:
$2,550
2 beds
2 baths
Listed 2 days ago
Apartment for rent: Lph02 - 120 Eagle Rock Way, Vaughan, Ontario L6A 5C2

View all 30 photos

About

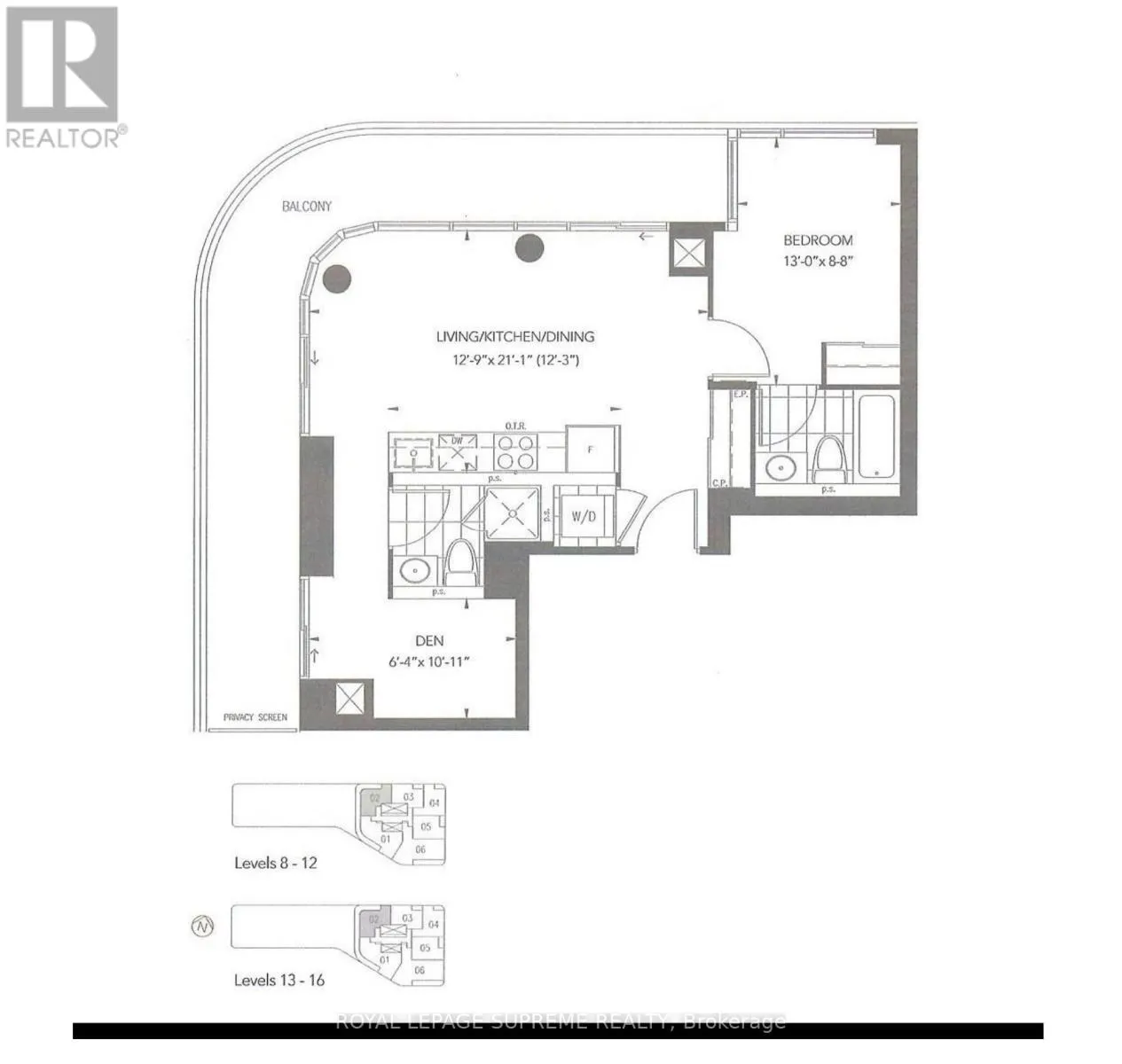
Keele St/Major Mackenzie Dr Welcome to elevated living in this beautifully appointed 1-bedroom plus den, 2-bathroom lower penthouse suite. Bathed in natural light from expansive windows, the open-concept layout seamlessly blends modern elegance with thoughtful design. A standout feature is the rare, windowed den-providing a bright, versatile space perfectly suited for a home office or guest retreat. Nestled in a dynamic Vaughan neighborhood, this suite offers an effortless commuter lifestyle. Reach downtown Toronto in ~45 minutes via the nearby Maple GO Station, or enjoy seamless access to Highways 400 and 407. Beyond the suite, residents have access to premium amenities, including a state-of-the-art cardio and weights room, yoga studio, party room, and an outdoor patio. With top-tier shopping, dining, and parks just moments away, this lower penthouse delivers a refined and highly connected lifestyle. (id:27476)

Property Highlights

MLS® Number
N12958752
Type
Single Family
Community Name
Rural Vaughan
Ownership Type
Condominium/Strata
Parking Space Total
1

Building

Building Type
Apartment
Square Footage
600 - 699 sqft
Bathrooms Total
2
Bedrooms Above Ground
1
Bedrooms Total
2
Amenities
Storage - Locker
Exterior Finish
Concrete
Fireplace Present
No
Basement Type
None
Basement Features
Building Heating Type
Forced air
Heating Fuel
Natural gas
Building Cooling Type
Central air conditioning

Location

Learn more about this property
Listing provided by:
ROYAL LEPAGE SUPREME REALTY
MLS® number:
N12958752
Agent:
Alexander Gasenko
*Indicates required field
Name is required
Email is required
Please enter a valid phone number (e.g., 416-111-1111).

Street Spotlight - For rent