80 Loretta Drive, Virgil, Ontario L0S 1T0

Listed for:
$1,099,000
4 beds
3 baths
Listed 36 days ago
House for rent: 80 Loretta Drive, Virgil, Ontario L0S 1T0

View all 50 photos

About

Niagara Stone Rd to Line 1 Rd to Casselman Blvd to Loretta Opportunity is knocking! Fabulous 2 storey home on a very desirable street in Virgil, Niagara-on-the-Lake. ALL 4 Bedrooms on one level, ideal for the growing family or a buyer enjoying the extra space for home office and guest rooms for friends and family. Renovated, updated…nothing to do but move in and enjoy! Built by Mountainview Homes, a premier builder in Niagara. The layout on the main floor is open-concept. Includes kitchen with S/S appliances, stone countertops including island, spacious living room and dining room areas with walk-out to a covered porch and your own stunning heated in-ground pool. Next to the pool is a large grass area, perfect to plant a garden or have kids/grandkids play. A pie shaped lot. The back of the property measures 73 ft across. Fully fenced, private, planted trees along the border, and bonus no neighbours behind, just the ravine. On the upper level are 4 bedrooms, 1 full bath with soaker tub and separate shower. The staircase and railing are custom made, 100% hardwood, while the floors throughout the main level and second floor are new engineered hardwood. The lower level has a full bath, bedroom, living room, and exercise space. Over all, the home is over 2,700 sqft on 3 levels. Another bonus is you are only a few steps to a beautiful park complete with walking trails, seating areas, and splash pad for the kids. See photos #3 and #4 for floorplans, upgrades, and features. Treat yourself and come to view this stunning home! (id:27476)

Property Highlights

MLS® Number
40797157
Type
Single Family
Ownership Type
Freehold
Land Size
under 1/2 acre
Parking Space Total
6

Building

Building Type
House
Storeys
2.00
Square Footage
2731 sqft
Bathrooms Total
3
Bedrooms Above Ground
4
Bedrooms Total
4
Amenities
Airport, Place of Worship, Playground, Schools
Exterior Finish
Brick, Vinyl siding
Fireplace Present
No
Basement Type
Full (Finished)
Basement Features
Building Heating Type
Forced air
Heating Fuel
Natural gas
Building Cooling Type
Central air conditioning

Utilities

Water
Municipal water
Utility Sewer
Municipal sewage system

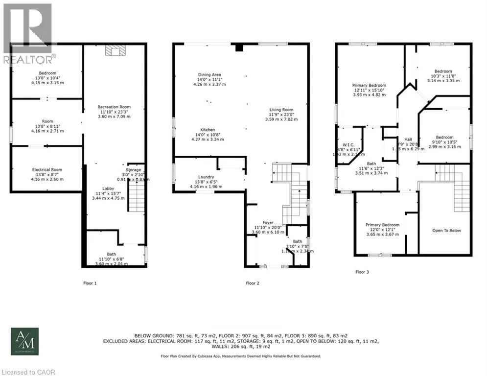
Room Layout

Bedroom
Second level
12'0'' x 12'1''
Bedroom
Second level
9'10'' x 10'5''
4pc Bathroom
Second level
11'6'' x 12'3''
Bedroom
Second level
10'3'' x 11'0''
Primary Bedroom
Second level
12'11'' x 15'10''
Utility room
Basement
13'8'' x 8'7''
Recreation room
Basement
11'4'' x 15'7''
3pc Bathroom
Basement
11'10'' x 6'8''
Bonus Room
Basement
13'8'' x 8'11''
Bonus Room
Basement
13'8'' x 10'4''
Recreation room
Basement
11'10'' x 23'3''
Living room
Main level
11'9'' x 23'0''
Dining room
Main level
14'0'' x 11'1''
Kitchen
Main level
14'0'' x 6'5''
Laundry room
Main level
13'8'' x 6'5''
2pc Bathroom
Main level
3'10'' x 7'8''
Foyer
Main level
11'10'' x 20'0''

Location

Learn more about this property
Listing provided by:
Right at Home Realty
MLS® number:
40797157
Agent:
Angelika Zammit
*Indicates required field
Name is required
Email is required
Please enter a valid phone number (e.g., 416-111-1111).