10611 Highway 3, Wainfleet, Ontario L3K 5V4

Listed for:
$614,900
0 beds
0 baths
Listed 37 days ago
10611 Highway 3, Wainfleet, Ontario L3K 5V4

View all 25 photos

Learn more about this property
Listing provided by:
iCloud Realty Ltd.
MLS® number:
X12072630
Agent:
Naveed Suleman
*Indicates required field
Name is required
Email is required
Please enter a valid phone number (e.g., 416-111-1111).

About

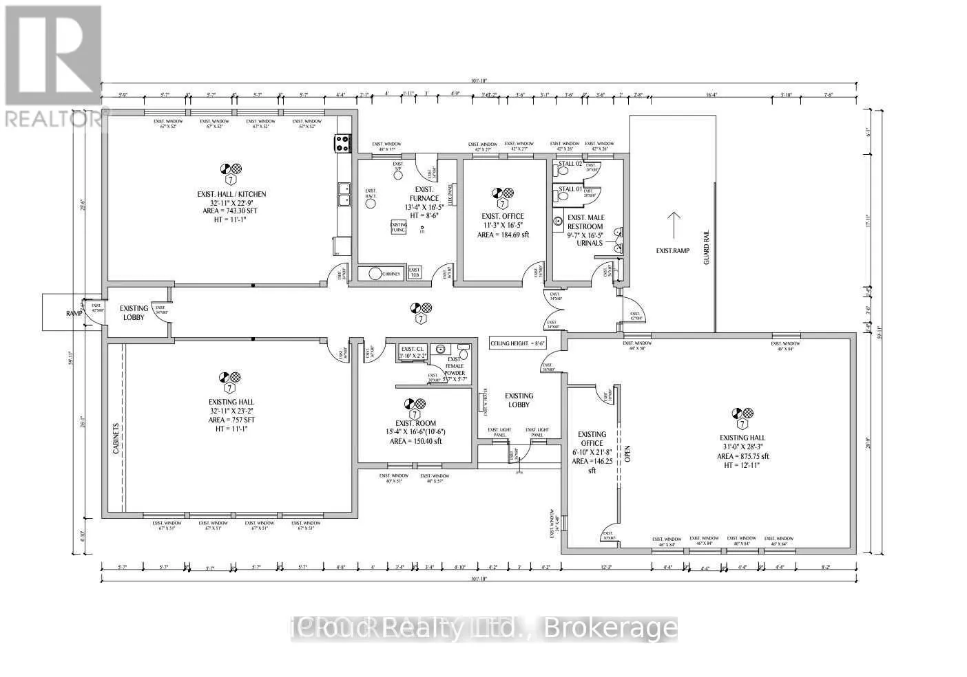
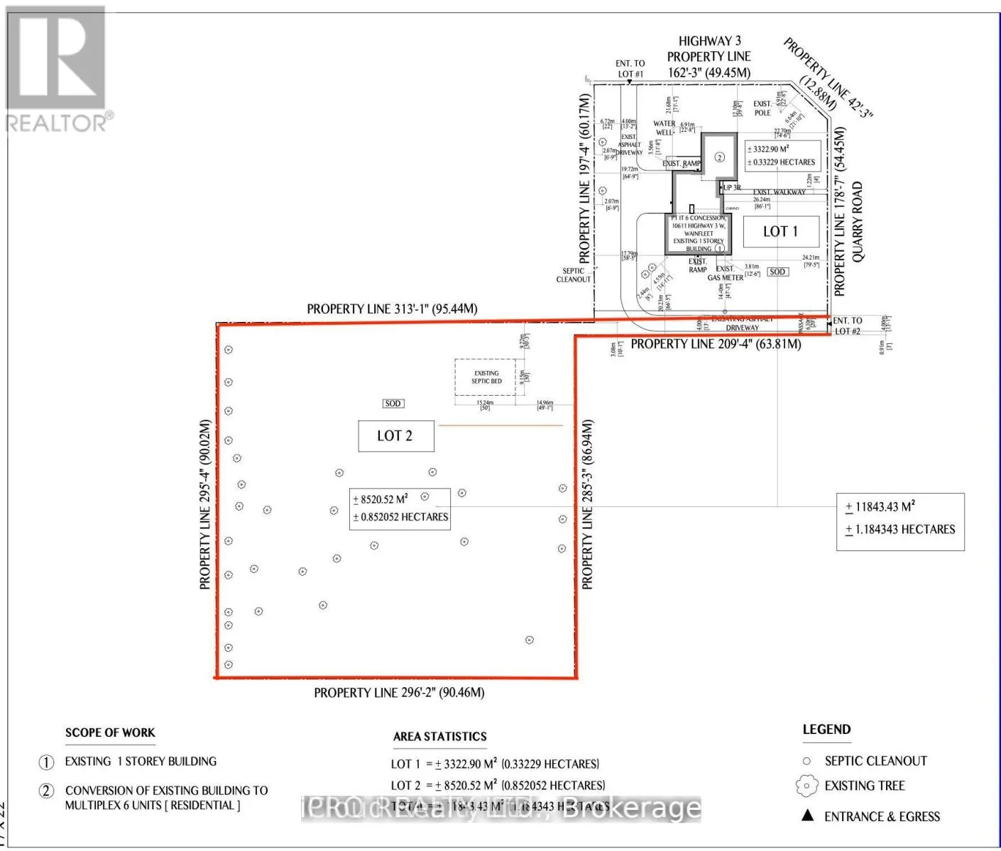
Highway 3 & Quarry Rd. Commercial 2.9 acre parcel land with drive through potential facility. This property is 4400sf for multi usage including daycare, place of worship, school, hospital etc. Ample parking available. The property has a building on the front acre of the lan (Zone I-1), and almost 2 more acres on the south west corner (Zoned A4). This great piece of real estate is located close to Lake Erie, golf, skydiving and just minutes from other City amenities. New boilers, new water system, new boiler radiators. New LED lights. (id:27476)

Property Highlights

MLS® Number
X12072630
Type
Retail
Community Name
879 - Marshville/Winger
Land Size
2.9 ac

Building

Square Footage
3 ac
Fireplace Present
No
Basement Type
Basement Features
Building Heating Type
Radiant heat
Heating Fuel
Building Cooling Type
None

Location