10187 Lakeshore Road W, Wainfleet, Ontario L3K 5V4

Listed for:
$1,399,900
5 beds
4 baths
Listed 6 days ago
House for rent: 10187 Lakeshore Road W, Wainfleet, Ontario L3K 5V4

View all 45 photos

About

Cross Streets: BTWN CEDAR CREST AND CAMELOT DR. ** Directions: HWY3 TO CEMENT ROAD, WEST ON LAKESHORE W. Camelot Hill Estate: A custom-built Georgian Colonial set on 1.2 acres of manicured, tree-lined grounds overlooking winding Lakeshore Road West, just outside the lakeside town of Port Colborne. With over 3,700 sq ft of finished living space, the home commands a striking hillside presence while offering privacy and a peaceful setting. The columned entrance opens to a grand foyer with a sweeping oak staircase, leading into formal living and dining rooms defined by classic architectural details. The main floor also features a private office, a bright Florida room with French doors to the terrace, and a comfortable family room-well suited for both everyday living and entertaining.The kitchen was updated in 2022 with new cabinetry and flooring, blending traditional style with modern function, and includes granite countertops, high-end appliances, and a breakfast area overlooking the grounds. Upstairs, there are 4-5 generous bedrooms and 2.5 updated bathrooms. Restored hardwood floors, two fireplaces, and abundant natural light highlight the home's timeless character throughout.The lower level is unfinished, offering excellent potential to further expand the living space. Major updates include a new roof (2021), new windows and doors (2022), garage doors, lighting, and a new water system. A dedicated internet tower provides reliable high-speed connectivity.The landscaped grounds feature terraces, gardens, and a heated garden shed-ideal for relaxing, gathering, or creative use. Nearby lake access at Cedar Crest Road leads to sandy Camelot Beach and the shoreline of Lake Erie. 10187 Lakeshore Road is a rare estate offering a serene wooded setting, strong presence, and quick possession. (id:27476)

Property Highlights

MLS® Number
X12771776
Type
Single Family
Community Name
880 - Lakeshore
Ownership Type
Freehold
Land Size
358.4 x 294.6 FT|1/2 - 1.99 acres
Parking Space Total
8

Building

Building Type
House
Storeys
2.00
Square Footage
3500 - 5000 sqft
Bathrooms Total
4
Bedrooms Above Ground
4
Bedrooms Total
5
Amenities
Fireplace(s) Golf Nearby, Park, Schools, Beach
Exterior Finish
Cedar Siding, Shingles
Fireplace Present
Yes
Basement Type
N/A (Partially finished)
Basement Features
Building Heating Type
Forced air
Heating Fuel
Natural gas
Building Cooling Type
Central air conditioning

Utilities

Water
Drilled Well
Utility Sewer
Septic System

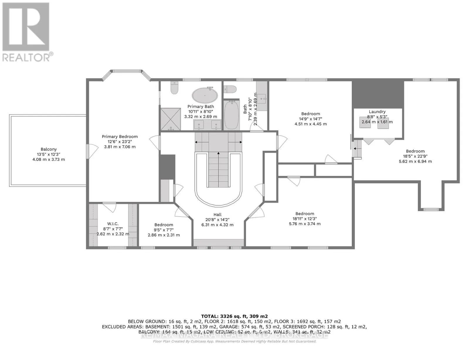
Room Layout

Bedroom 3
Second level
5.76 m x 3.74 m
Bedroom 4
Second level
5.62 m x 6.94 m
Laundry room
Second level
2.64 m x 1.61 m
Den
Second level
2.86 m x 2.31 m
Primary Bedroom
Second level
3.81 m x 7.06 m
Bedroom 2
Second level
4.51 m x 4.45 m
Utility room
Basement
16.3 m x 9.02 m
Foyer
Main level
5 m x 5.1 m
Living room
Main level
5.94 m x 4.77 m
Dining room
Main level
4.5 m x 4.16 m
Family room
Main level
4.6 m x 6 m
Kitchen
Main level
5.03 m x 4.26 m
Sunroom
Main level
3.76 m x 3.17 m
Office
Main level
4.89 m x 2.71 m

Location

Learn more about this property
Listing provided by:
RE/MAX NIAGARA REALTY LTD, BROKERAGE
MLS® number:
X12771776
Agent:
Frank Ruzycki
*Indicates required field
Name is required
Email is required
Please enter a valid phone number (e.g., 416-111-1111).

Street Spotlight - For sale