53170 Willford Road, Wainfleet, Ontario L0S 1S0

Listed for:
$649,900
3 beds
2 baths
Listed 11 days ago
House for rent: 53170 Willford Road, Wainfleet, Ontario L0S 1S0

View all 41 photos

About

Cross Streets: Wilford and WInger Rd. ** Directions: Victoria (Hgh 24) to Willforfd. Turn west and it is about 4 km on the right. Just past Perry Rd. Wake up to views of a tree farm and enjoy coffee in a backyard with no rear neighbours-just open grass and perimeter trees. This isn't just a house; it's the rural lifestyle you've been waiting for, without the renovation headaches. Extensively renovated and expanded, this home features a modern addition that adds a spacious primary bedroom, sparkling new bathroom, and a finished basement(with large windows) perfect for family movie nights, newer custom kitchen. Whether you're escaping the city or looking for something new in the country but close to city amenities, this property offers the space one wants, a rural setting to enjoy and a home ready to move into. (id:27476)

Property Highlights

MLS® Number
X12801238
Type
Single Family
Community Name
879 - Marshville/Winger
Ownership Type
Freehold
Land Size
132 x 165 FT
Parking Space Total
3

Building

Building Type
House
Storeys
1.00
Square Footage
1500 - 2000 sqft
Bathrooms Total
2
Bedrooms Above Ground
3
Bedrooms Total
3
Amenities
Fireplace(s) Place of Worship
Exterior Finish
Vinyl siding
Fireplace Present
Yes
Basement Type
N/A (Finished)
Basement Features
Building Heating Type
Baseboard heaters, Other, Not known
Heating Fuel
Electric, Natural gas, Other, Wood
Building Cooling Type
Window air conditioner

Utilities

Water
Cistern
Utility Sewer
Septic System

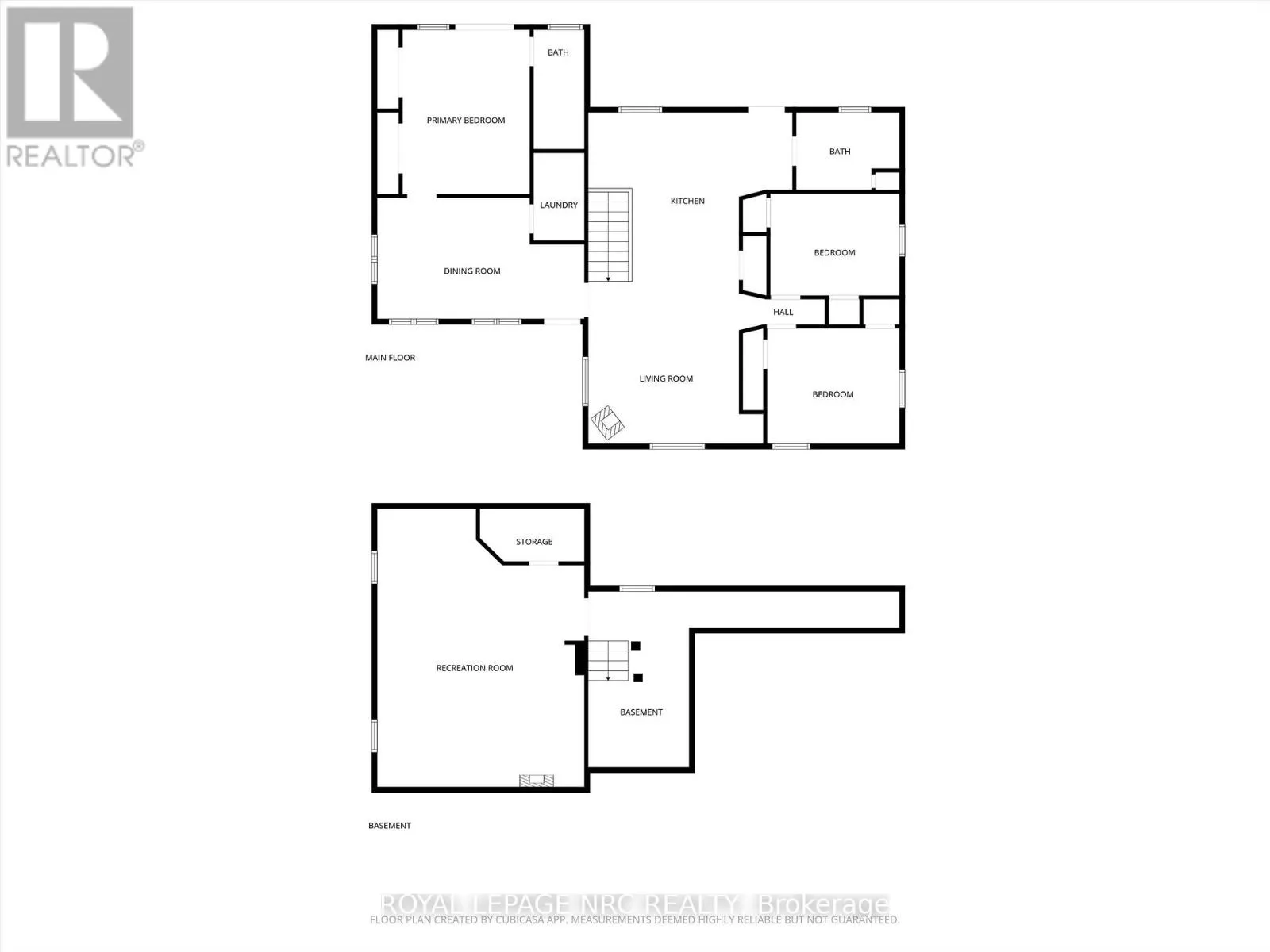
Room Layout

Other
Lower level
5.76 m x 4.89 m
Recreational, Games room
Lower level
8.65 m x 7.74 m
Dining room
Main level
5.76 m x 3.35 m
Primary Bedroom
Main level
3.54 m x 4.58 m
Bathroom
Main level
1.42 m x 3.31 m
Laundry room
Main level
1.42 m x 2.44 m
Kitchen
Main level
5.68 m x 5.03 m
Living room
Main level
4.86 m x 4.18 m
Bathroom
Main level
2.87 m x 2.15 m
Bedroom 2
Main level
3.59 m x 2.84 m
Bedroom 3
Main level
3.68 m x 3.2 m

Location

Learn more about this property
Listing provided by:
ROYAL LEPAGE NRC REALTY
MLS® number:
X12801238
Agent:
Douglas Sider
*Indicates required field
Name is required
Email is required
Please enter a valid phone number (e.g., 416-111-1111).