10611 Highway 3, Wainfleet, Ontario L3K 5V4

Listed for:
$615,000
0 beds
0 baths
Listed 48 days ago
10611 Highway 3, Wainfleet, Ontario L3K 5V4

View all 36 photos

About

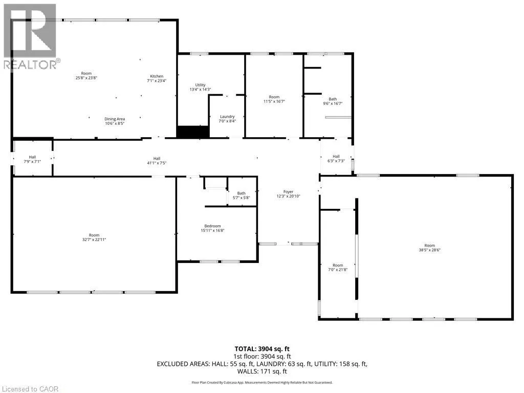
Quaker Rd to Highway 3 Prime 2.9 acre commercial parcel on Highway 3 featuring a 4,400 sq ft building on I-1 zoned land plus nearly 2 additional acres zoned A4 for future expansion. Excellent opportunity for investors, developers, daycare, medical, institutional or religious use. Ample parking and strong highway exposure. Recent upgrades include new boilers, radiators, water system and LED lighting. Minutes to Port Colborne, Welland and Wainfleet and close to Lake Erie amenities. Exceptional community hub potential with long term appreciation and redevelopment upside. (id:27476)

Property Highlights

MLS® Number
40808137
Type
Institutional - Special Purpose
Ownership Type
Freehold
Land Size
2 - 4.99 acres

Building

Storeys
1.00
Square Footage
4400 sqft
Fireplace Present
No
Basement Type
None
Basement Features
Building Heating Type
Heating Fuel
Building Cooling Type

Utilities

Utility Sewer
Septic System

Location

Learn more about this property
Listing provided by:
RE/MAX Escarpment Golfi Realty Inc.
MLS® number:
40808137
Agent:
Rob Golfi
*Indicates required field
Name is required
Email is required
Please enter a valid phone number (e.g., 416-111-1111).