420 Erie Street, Warwick, Ontario N0M 2S0

Listed for:
$699,000
3 beds
2 baths
Listed 47 days ago
House for rent: 420 Erie Street, Warwick, Ontario N0M 2S0

View all 23 photos

Learn more about this property
Listing provided by:
EXP REALTY
MLS® number:
X12396408
Agent:
Paisley Smith
*Indicates required field
Name is required
Email is required
Please enter a valid phone number (e.g., 416-111-1111).

About

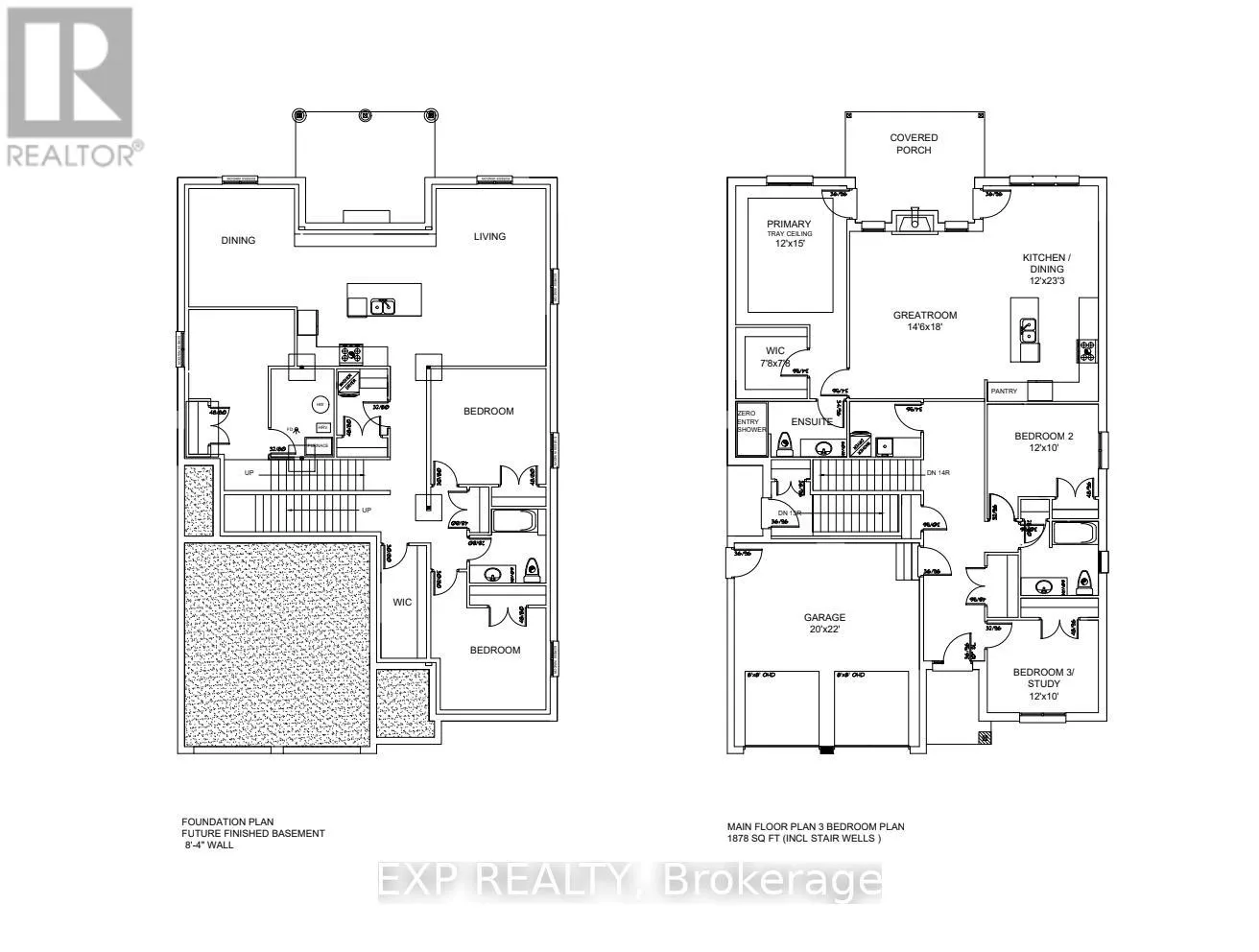
Cross Streets: Nauvoo Rd. ** Directions: Head south on Main St/Nauvoo Rd/Lambton County Rd 79 S toward McGregor St, Turn right onto Erie St, property will be on the left. TO BE BUILT - Welcome to the Vivienne, a thoughtfully designed 1,878 sq. ft. bungalow by Branch Homes that combines everyday comfort with modern convenience. This 3-bedroom, 2-bathroom home features an open-concept layout with a bright kitchen that flows into the living area, complete with a cozy gas fireplace, engineered hardwood throughout and access to the covered back deck perfect for entertaining or relaxing outdoors. The eat-in kitchen offers plenty of space for family meals, while the main-floor laundry adds to the easy lifestyle.The primary suite is a true retreat, with a walk-in closet and a spa-inspired ensuite featuring a zero-entry glass shower. Two additional bedrooms and a full bathroom are tucked off on the other side of the home round out the main level. The lower level offers a separate side entrance and is roughed in for a kitchen and bathroom. The floor plans show room for two bedrooms, a living space, and a dining area giving you incredible flexibility for multi-generational living, rental income, or simply making use of a spacious basement that also connects directly to the main floor. Additional features include a concrete driveway and quality finishes throughout, designed with both style and functionality in mind. The Vivienne is a perfect blend of modern living, thoughtful design, and future flexibility. Check out our model at 408 Erie Street, Watford ON currently shown in the photos. (id:27476)

Property Highlights

MLS® Number
X12396408
Type
Single Family
Community Name
Watford
Ownership Type
Freehold
Land Size
49.2 x 133 FT|under 1/2 acre
Parking Space Total
6

Building

Building Type
House
Storeys
1.00
Square Footage
1500 - 2000 sqft
Bathrooms Total
2
Bedrooms Above Ground
3
Bedrooms Total
3
Amenities
Fireplace(s) Place of Worship
Exterior Finish
Brick, Vinyl siding
Fireplace Present
Yes
Basement Type
Full (Unfinished)
Basement Features
Building Heating Type
Forced air
Heating Fuel
Natural gas
Building Cooling Type
Central air conditioning

Utilities

Water
Municipal water
Utility Sewer
Sanitary sewer

Room Layout

Bedroom
Main level
3.6576 m x 4.572 m
Bedroom 2
Main level
3.6576 m x 3.048 m
Great room
Main level
4.4196 m x 5.547 m
Kitchen
Main level
7.01 m x 3.81 m
Bedroom 3
Main level
3.048 m x 3.657 m
Bathroom
Main level
1.8288 m x 3.6576 m
Bathroom
Main level
2.56 m x 3.65 m

Location