65 Meadow Lane, Wasaga Beach, Ontario L9Z 0A3

Listed for:
$439,900
2 beds
1 baths
Listed 44 days ago
Row / Townhouse for rent: 65 Meadow Lane, Wasaga Beach, Ontario L9Z 0A3

View all 31 photos

About

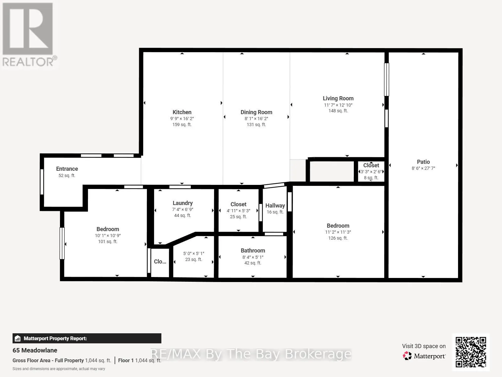
River Road West to Zoo Park Road to Meadow Lane to #65 Welcome to 65 Meadow Lane! Located in the desirable 55+ community of Wasaga Meadows, this home offers a relaxed lifestyle just minutes from the beach, shopping, dining, golf, and scenic walking trails. Step inside from the covered front porch or through the single-car garage, which opens into a bright front hall enhanced by a skylight. The main living space features an open-concept kitchen, dining, and living area complete with a gas fireplace, ceiling fan, pot lights, and a walkout to a covered patio with a screened sitting area and gas BBQ hookup. The kitchen includes a functional island with storage as well as a built-in desk. The home also features new flooring throughout, adding a fresh and updated feel. There are two spacious bedrooms, including a primary bedroom with two closets, a 4-piece main bath, and a separate laundry room with a sink and additional storage. Residents also have the option to enjoy the amenities at Country Life Resort on Theme Park Drive for an additional annual fee of approximately $110 per year, which includes access to the indoor and outdoor pools. Estimated monthly costs for the new owner are as follows: land lease rent $800, lot taxes $50.99, and structure taxes $115.64. (id:27476)

Property Highlights

MLS® Number
S12818132
Type
Single Family
Community Name
Wasaga Beach
Ownership Type
Leasehold/Leased Land
Land Size
under 1/2 acre
Parking Space Total
2

Building

Building Type
Row / Townhouse
Storeys
1.00
Square Footage
700 - 1100 sqft
Bathrooms Total
1
Bedrooms Above Ground
2
Bedrooms Total
2
Amenities
Fireplace(s) Golf Nearby, Beach
Exterior Finish
Brick
Fireplace Present
Yes
Basement Type
None
Basement Features
Building Heating Type
Forced air
Heating Fuel
Natural gas
Building Cooling Type
Central air conditioning

Utilities

Water
Municipal water
Utility Sewer
Sanitary sewer

Room Layout

Sunroom
Main level
8.44 m x 2.62 m
Kitchen
Main level
3.02 m x 4.94 m
Dining room
Main level
2.47 m x 4.94 m
Living room
Main level
3.56 m x 3.68 m
Bathroom
Main level
2.56 m x 1.55 m
Laundry room
Main level
2.25 m x 2.1 m
Bedroom
Main level
3.08 m x 3.32 m
Primary Bedroom
Main level
3.41 m x 3.44 m

Location

Learn more about this property
Listing provided by:
RE/MAX By The Bay Brokerage
MLS® number:
S12818132
Agent:
Brad Hammett
*Indicates required field
Name is required
Email is required
Please enter a valid phone number (e.g., 416-111-1111).