37 Walnut Drive, Wasaga Beach, Ontario L9Z 0A8

Listed for:
$1,435,000
5 beds
5 baths
Listed 29 days ago
House for rent: 37 Walnut Drive, Wasaga Beach, Ontario L9Z 0A8

View all 50 photos

About

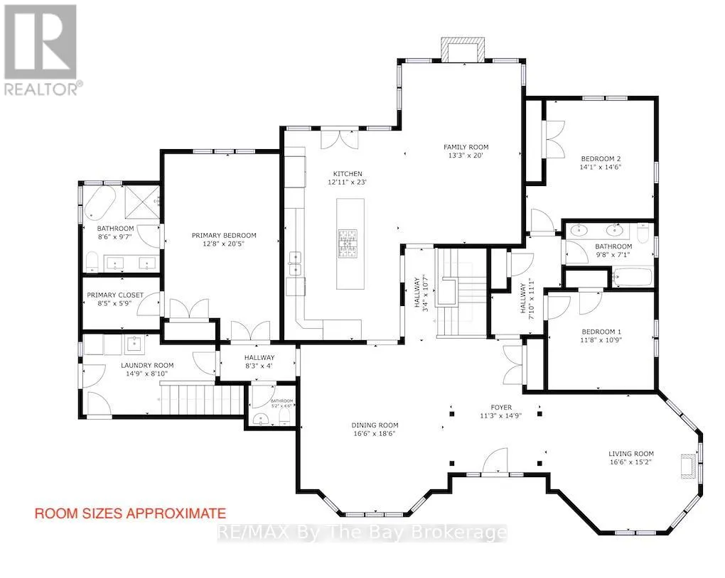
Sunnidale Road South To Walnut Drive Are you looking for space, comfort, and a great location for your family? This beautiful home offers over 2,600 sq. ft. of living space on the main floor and an oversized triple garage with plenty of room for cars, toys, and storage.Set on a -acre lot in one of Wasaga Beach's most sought-after estate communities, this home is surrounded by other high-quality, luxury properties. You can enjoy a quiet country feel while still being just minutes from town.Step inside to bright, open living spaces designed for family life and entertaining. The recently updated kitchen features a large island and flows into the family room with soaring cathedral ceilings - the perfect place to gather. There is also a separate living room and dining room for more formal occasions.The primary bedroom is a private retreat with a walk-in closet, a second closet, double sinks, a relaxing soaker tub, and a glass shower. Two additional spacious bedrooms share a full bathroom, making this layout ideal for growing families.You'll love the 9-foot ceilings, large windows, and natural light throughout the home. The backyard offers plenty of space to play and relax, plus an extended deck that's perfect for outdoor dining and summer evenings.The partially finished basement is ideal for extended family or guests. It features two staircases, a full in-law suite with its own kitchen, three bedrooms, two full bathrooms, and a large recreation area. There is also a large unfinished space for storage or future plans.The location is hard to beat. Walk to MacIntyre Creek trails, drive just 5 minutes to shopping, dining, and the beach, 15 minutes to Collingwood, and 25 minutes to Blue Mountain Village.Recent updates include a new roof (2022) and new black front windows (2025).This is not a cookie-cutter home. It is a unique estate property in a well-established luxury neighbourhood - ready for your family to move in and enjoy. (id:27476)

Property Highlights

MLS® Number
S12837638
Type
Single Family
Community Name
Wasaga Beach
Ownership Type
Freehold
Land Size
104.8 x 311.1 FT|1/2 - 1.99 acres
Parking Space Total
9

Building

Building Type
House
Storeys
1.00
Square Footage
2500 - 3000 sqft
Bathrooms Total
5
Bedrooms Above Ground
3
Bedrooms Total
5
Amenities
Fireplace(s)
Exterior Finish
Stone, Brick
Fireplace Present
No
Basement Type
Partial (Partially finished)
Basement Features
Building Heating Type
Forced air
Heating Fuel
Natural gas
Building Cooling Type
Central air conditioning

Utilities

Water
Municipal water
Utility Sewer
Septic System

Room Layout

Bedroom
Basement
3.78 m x 2.84 m
Family room
Basement
5.4 m x 3.45 m
Other
Basement
5.99 m x 4.11 m
Bedroom
Basement
3.94 m x 3.63 m
Kitchen
Main level
8.15 m x 3.72 m
Family room
Main level
6.1 m x 3.96 m
Dining room
Main level
4.88 m x 4.22 m
Living room
Main level
5.28 m x 4.67 m
Primary Bedroom
Main level
5.49 m x 3.96 m
Bedroom
Main level
3.66 m x 3.35 m
Bedroom
Main level
3.66 m x 3.05 m
Laundry room
Main level
4.5 m x 2.69 m

Location

Learn more about this property
Listing provided by:
RE/MAX By The Bay Brokerage
MLS® number:
S12837638
Agent:
Andrew Mckay
*Indicates required field
Name is required
Email is required
Please enter a valid phone number (e.g., 416-111-1111).

Community Spotlight: Homes For sale in Your Neighborhood