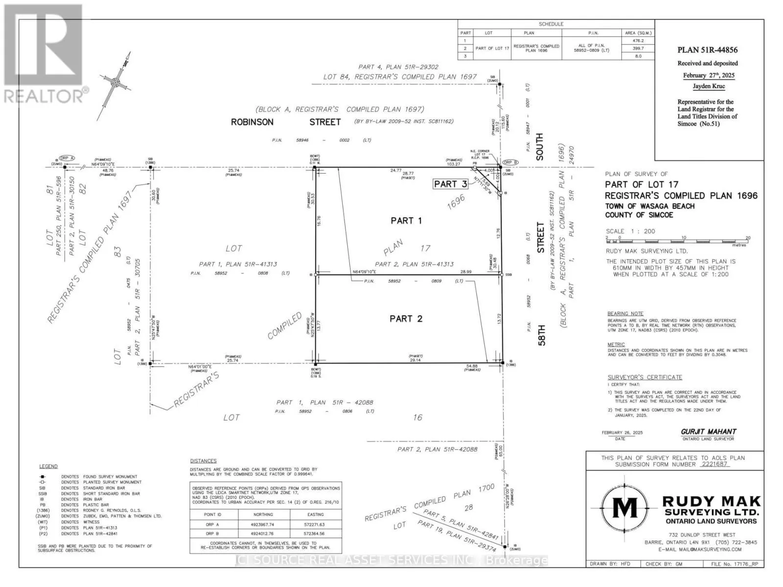
128 58th Street S, Wasaga Beach, Ontario L9Z 2Z1

Listed for:
$259,900
0 beds
0 baths
Listed 66 days ago
128 58th Street S, Wasaga Beach, Ontario L9Z 2Z1

View all 5 photos

About

Cross Streets: Robinson Rd. ** Directions: From the west side of Wasaga Beach, take Mosley St. to 58th St. South. The property is on the southwest corner of 58th St. South and Robinson Rd. Build your new home at the best location in Wasaga Beach. Just minutes to good schools, shopping at the Real Canadian Superstore and the soon-to-be-built Costco. Just a short walk to the longest fresh water beach in the world! This is a new lot, so property taxes are yet to be assessed. An estimated tax amount assessed as vacant land is shown. *For Additional Property Details Click The Brochure Icon Below* (id:27476)

Property Highlights

MLS® Number
S12871356
Type
Vacant Land
Community Name
Wasaga Beach
Land Size
55 x 95 FT|under 1/2 acre

Building

Fireplace Present
No
Basement Type
Basement Features
Building Heating Type
Heating Fuel
Building Cooling Type

Utilities

Water
Municipal water
Utility Sewer
Sanitary sewer

Location

Learn more about this property
Listing provided by:
ICI SOURCE REAL ASSET SERVICES INC.
MLS® number:
S12871356
Agent:
James Tasca
*Indicates required field
Name is required
Email is required
Please enter a valid phone number (e.g., 416-111-1111).

Community Spotlight: Homes For sale in Your Neighborhood