Lot 79 Park Drive, Wasaga Beach, Ontario L9Z 2L2

Listed for:
$445,000
0 beds
0 baths
Listed 8 days ago
Lot 79 Park Drive, Wasaga Beach, Ontario L9Z 2L2

View all 6 photos

About

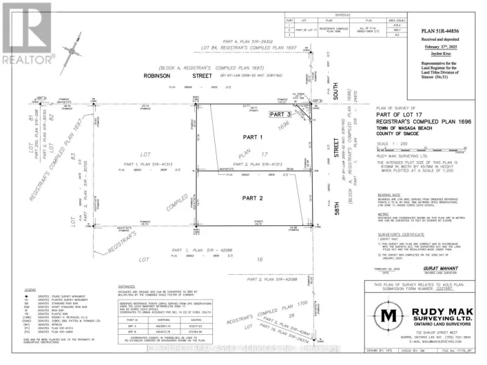
Cross Streets: Main Street and Wood Avenue. ** Directions: Main Street to Wood Avenue to Park Drive. Build your dream home in a prime Wasaga Beach location. This vacant lot is just steps to the sandy shoreline and within walking distance to Beach Area 1. Set in a desirable and growing area, this property offers an excellent opportunity for a custom home, cottage, or investment in a strong waterfront community. Water and sewer services are available at the road, and building permits available with application, making it easier to move forward with your plans.Located on a quiet court surrounded by newly built homes, this is an amazing family-friendly neighbourhood where you can enjoy both privacy and a sense of community.You're also within walking distance to restaurants, shopping at Stonebridge Town Centre, and local entertainment, including popular summer events like the Jazz & Blues Festival and classic car evenings. Wasaga Beach continues to see major redevelopment along the beachfront, with new residential and commercial spaces, shops, restaurants, entertainment, and a planned hotel, all adding long-term value to the area.With continued growth and investment, this is a great chance to secure land close to the beach in one of Ontario's fastest-evolving waterfront communities. Enjoy everything Wasaga Beach has to offer, from long summer days by the water to walking trails and nearby amenities.A great opportunity to build in a sought-after location. (id:27476)

Property Highlights

MLS® Number
S12916872
Type
Vacant Land
Community Name
Wasaga Beach
Land Size
124.77 x 150 FT ; 149.97 x 96.28 x 98.73 x 124.77|under 1/2 acre

Building

Fireplace Present
No
Basement Type
Basement Features
Building Heating Type
Heating Fuel
Building Cooling Type

Location

Learn more about this property
Listing provided by:
Royal LePage Locations North
MLS® number:
S12916872
Agent:
Kristina Tardif
*Indicates required field
Name is required
Email is required
Please enter a valid phone number (e.g., 416-111-1111).

Community Spotlight: Homes For sale in Your Neighborhood