24 Beachway Trail, Wasaga Beach, Ontario L9Z 0G1

Listed for:
$689,900
3 beds
3 baths
Listed 13 days ago
Row / Townhouse for rent: 24 Beachway Trail, Wasaga Beach, Ontario L9Z 0G1

View all 41 photos

About

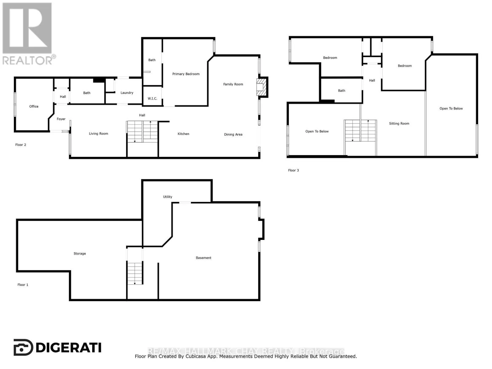
Cross Streets: River Rd E and Beachway Trail. ** Directions: River Rd W to Zoo Park Rd to River Rd E to Beachway Trail. Welcome to this beautifully maintained home located in a sought-after, family-friendly community where lifestyle and convenience come together. With generous living space, fantastic amenities and a private backyard retreat, this home is perfect for families, retirees, or anyone looking to enjoy the best of Wasaga Beach living year-round. Step inside and be greeted by vaulted ceilings that create a bright and open feel throughout the main living areas. The functional layout includes 3 bedrooms, 3 bathrooms, plus a versatile office that can easily be used as a 4th bedroom, making it ideal for growing families, guests or working from home. Enjoy the convenience of inside entry from the garage and main floor laundry for easy everyday living. With two spacious family rooms and a separate living room, there is plenty of room to relax, entertain, and make lasting memories. Outside, the fully fenced backyard offers privacy and space for kids and pets, while the large deck with hot tub is perfect for unwinding after a busy day. Residents also enjoy access to an outdoor pool and private beach area, adding to the incredible lifestyle this community provides. Located close to shopping, restaurants, schools, scenic trails, skiing and countless recreational activities, this home truly offers something for everyone. (id:27476)

Property Highlights

MLS® Number
S12917874
Type
Single Family
Community Name
Wasaga Beach
Ownership Type
Freehold
Land Size
30 x 124.3 FT
Parking Space Total
2

Building

Building Type
Row / Townhouse
Storeys
2.00
Square Footage
2000 - 2500 sqft
Bathrooms Total
3
Bedrooms Above Ground
3
Bedrooms Total
3
Exterior Finish
Vinyl siding
Fireplace Present
Yes
Basement Type
N/A (Unfinished)
Basement Features
Building Heating Type
Forced air
Heating Fuel
Natural gas
Building Cooling Type
Central air conditioning

Utilities

Water
Municipal water
Utility Sewer
Sanitary sewer

Location

Learn more about this property
Listing provided by:
RE/MAX HALLMARK CHAY REALTY
MLS® number:
S12917874
Agent:
Cindy Johnston
*Indicates required field
Name is required
Email is required
Please enter a valid phone number (e.g., 416-111-1111).

Community Spotlight: Homes For sale in Your Neighborhood