69 Caribou Trail, Wasaga Beach, Ontario L9Z 1N3

Listed for:
$750,000
4 beds
3 baths
Listed 13 days ago
House for rent: 69 Caribou Trail, Wasaga Beach, Ontario L9Z 1N3

View all 42 photos

About

Cross Streets: Silver Birch Ave & Caribou Trail. ** Directions: River Rd W to Silver Birch Ave to Caribou Trail. All-Brick Raised Bungalow on Corner Lot. Welcome to this beautifully maintained all-brick raised bungalow, ideally situated on a corner lot in one of Wasaga Beach's most sought-after neighbourhoods. Just steps from Birchview Dunes Public School and a short walk to the Blueberry Trails for hiking, , and cross-country skiing, this home blends comfort, convenience, and lifestyle. Step inside to a bright open-concept floor plan featuring a kitchen with centre island, spacious eating area, and a cozy main-floor family room with a gas fireplace. A large, separate living room offers the perfect space for gatherings, while the walkout from the eating area leads to a large deck overlooking a fully fenced backyard complete with hot tub, heated above-ground pool, and fire pit area - ideal for entertaining or relaxing outdoors. The primary bedroom features a walk-in closet and a modern four-piece ensuite with a separate shower and standalone soaker tub. Main floor laundry adds everyday convenience. The finished basement provides even more living space with a large recreation room with gas fireplace, two additional bedrooms, and a full four-piece bath - perfect for guests or extended family. Additional highlights include a double car garage with inside entry, a large welcoming front foyer, new gas furnace (2024), and central air (approx. 3 years old). This home truly offers the best of Wasaga Beach living - space, comfort, and an unbeatable location close to schools, trails, and amenities. (id:27476)

Property Highlights

MLS® Number
S13000372
Type
Single Family
Community Name
Wasaga Beach
Ownership Type
Freehold
Land Size
81.9 x 109.8 FT
Parking Space Total
6

Building

Building Type
House
Storeys
1.00
Square Footage
1500 - 2000 sqft
Bathrooms Total
3
Bedrooms Above Ground
2
Bedrooms Total
4
Amenities
Fireplace(s)
Exterior Finish
Brick
Fireplace Present
Yes
Basement Type
Full (Finished)
Basement Features
Building Heating Type
Forced air
Heating Fuel
Natural gas
Building Cooling Type
Central air conditioning

Utilities

Water
Municipal water
Utility Sewer
Sanitary sewer

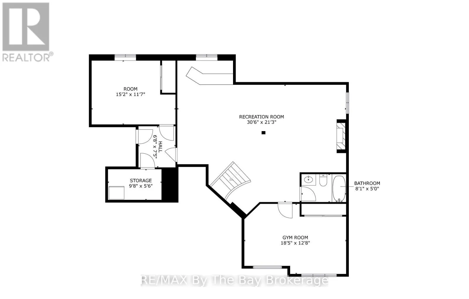
Room Layout

Bedroom 4
Basement
3.34 m x 6.52 m
Recreational, Games room
Basement
1.26 m x 9.2 m
Bedroom 3
Basement
3.35 m x 5.47 m
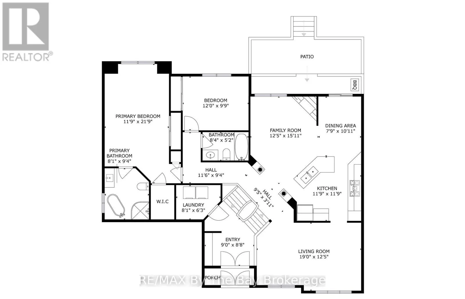
Kitchen
Main level
3.49 m x 4.16 m
Eating area
Main level
2.32 m x 3.2 m
Family room
Main level
3.61 m x 4.03 m
Living room
Main level
3.64 m x 5.64 m
Bedroom 2
Main level
2.93 m x 3.59 m
Primary Bedroom
Main level
3.51 m x 5.47 m
Foyer
Main level
2.68 m x 3.48 m
Laundry room
Main level
1.81 m x 2.43 m

Location

Learn more about this property
Listing provided by:
RE/MAX By The Bay Brokerage
MLS® number:
S13000372
Agent:
Jeff Mcinnis
*Indicates required field
Name is required
Email is required
Please enter a valid phone number (e.g., 416-111-1111).

Community Spotlight: Homes For sale in Your Neighborhood