122 New York Avenue, Wasaga Beach, Ontario L9Z 3A8

Listed for:
$739,000
2 beds
3 baths
Listed 1 day ago
House for rent: 122 New York Avenue, Wasaga Beach, Ontario L9Z 3A8

View all 30 photos

About

Cross Streets: Ryther Rd / New York Ave. ** Directions: Ryther Rd to New York Ave. Welcome to 122 New York Ave., nestled in the sought-after 55+ Park Bridge community of Park Place, beautiful Wasaga Beach! Offered by the original owner, this thoughtfully designed 2-bedroom, 3 bathroom home offers the perfect blend of comfort, space, privacy, and lifestyle. This rare Severn model is set on an oversized, premium pie-shaped lot, enjoying exceptional outdoor space and a rare level of seclusion. It backs directly onto the tranquil greenbelt and scenic walking trails - ideal for nature lovers and those seeking peaceful surroundings. Inside, you'll find a home enhanced with custom builder upgrades, offering unique touches throughout. The functional layout provides bright spacious principal rooms, while the full, walkout basement presents incredible access to your own gardens, and the outdoor living and entertaining space. Whether you're downsizing or embracing an active adult lifestyle, this home delivers the perfect combination of low-maintenance living and natural beauty, all within one of Wasaga Beach's most desirable adult lifestyle communities. (id:27476)

Property Highlights

MLS® Number
S13003906
Type
Single Family
Community Name
Wasaga Beach
Ownership Type
Leasehold/Leased Land
Parking Space Total
7

Building

Building Type
House
Storeys
1.00
Square Footage
1100 - 1500 sqft
Bathrooms Total
3
Bedrooms Above Ground
2
Bedrooms Total
2
Amenities
Fireplace(s)
Exterior Finish
Vinyl siding, Brick Facing
Fireplace Present
Yes
Basement Type
Full (Finished)
Basement Features
Walk out
Building Heating Type
Forced air
Heating Fuel
Natural gas
Building Cooling Type
Central air conditioning, Air exchanger

Utilities

Water
Municipal water
Utility Sewer
Sanitary sewer

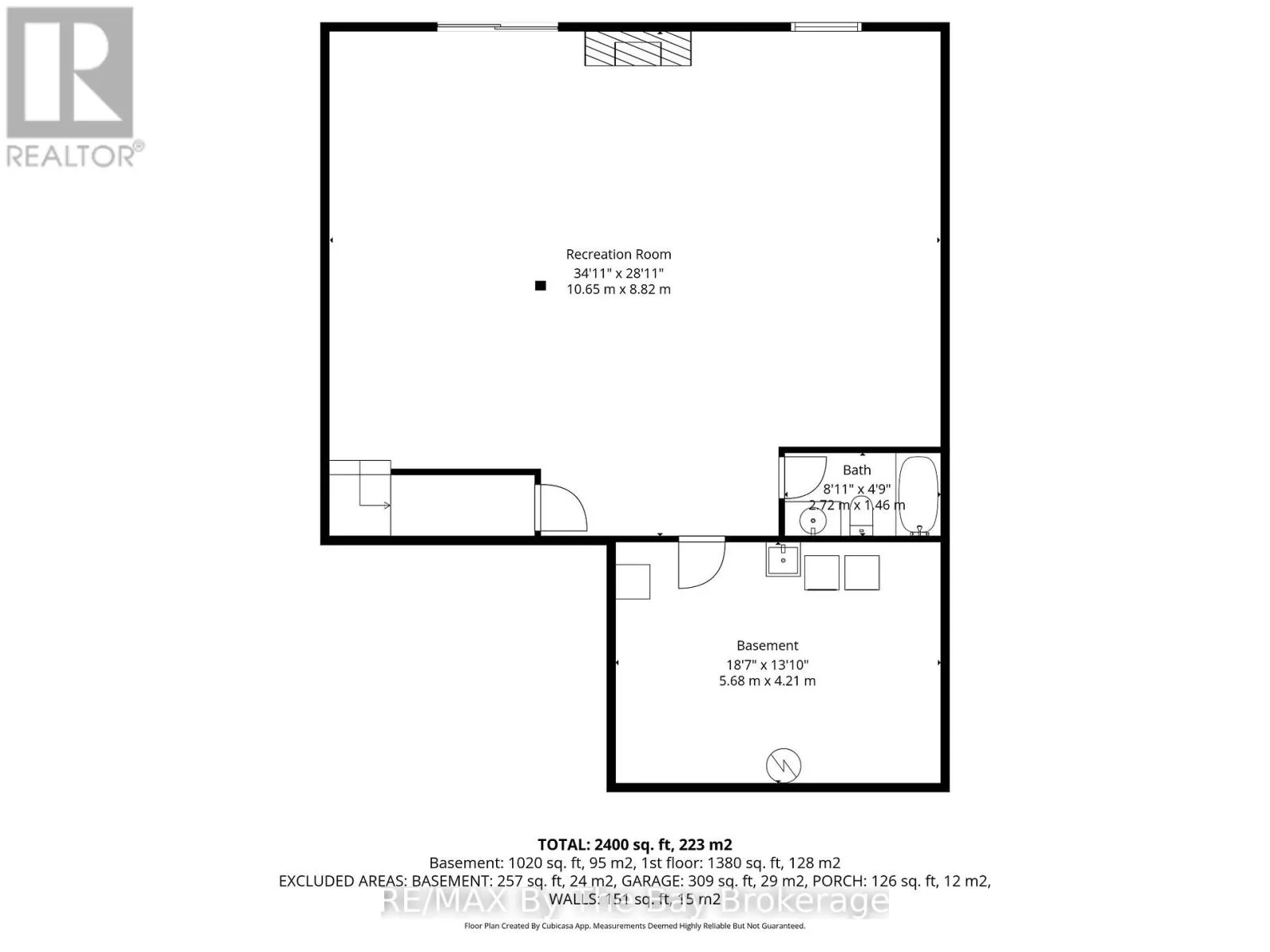
Room Layout

Recreational, Games room
Lower level
7.3 m x 10.6 m
Utility room
Lower level
4.2 m x 5.6 m
Living room
Main level
4.4 m x 4.3 m
Kitchen
Main level
3.2 m x 4.4 m
Dining room
Main level
2.4 m x 4.4 m
Family room
Main level
3.3 m x 4.4 m
Primary Bedroom
Main level
4.3 m x 4.4 m
Bedroom 2
Main level
2.8 m x 3.6 m

Location

Learn more about this property
Listing provided by:
RE/MAX By The Bay Brokerage
MLS® number:
S13003906
Agent:
Scott R. Horslin
*Indicates required field
Name is required
Email is required
Please enter a valid phone number (e.g., 416-111-1111).