24 Berry Hill Avenue, Waterdown, Ontario L8B 0E8

Listed for:
$799,900
0 beds
0 baths
Listed 162 days ago
24 Berry Hill Avenue, Waterdown, Ontario L8B 0E8

View all 25 photos

About

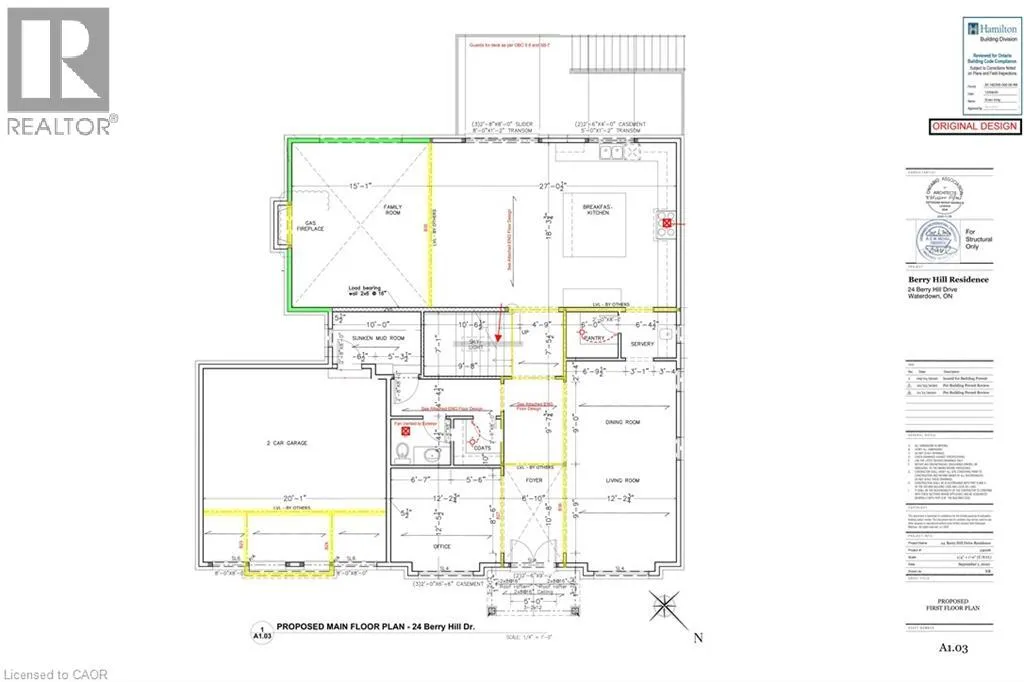
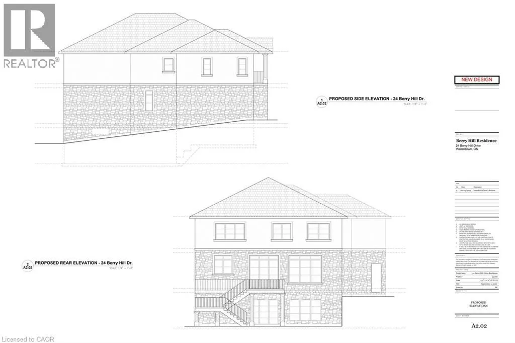
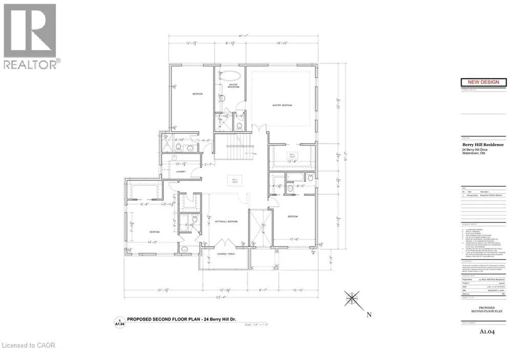
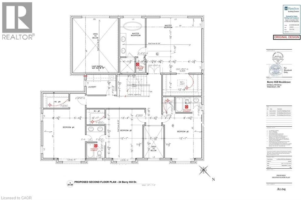
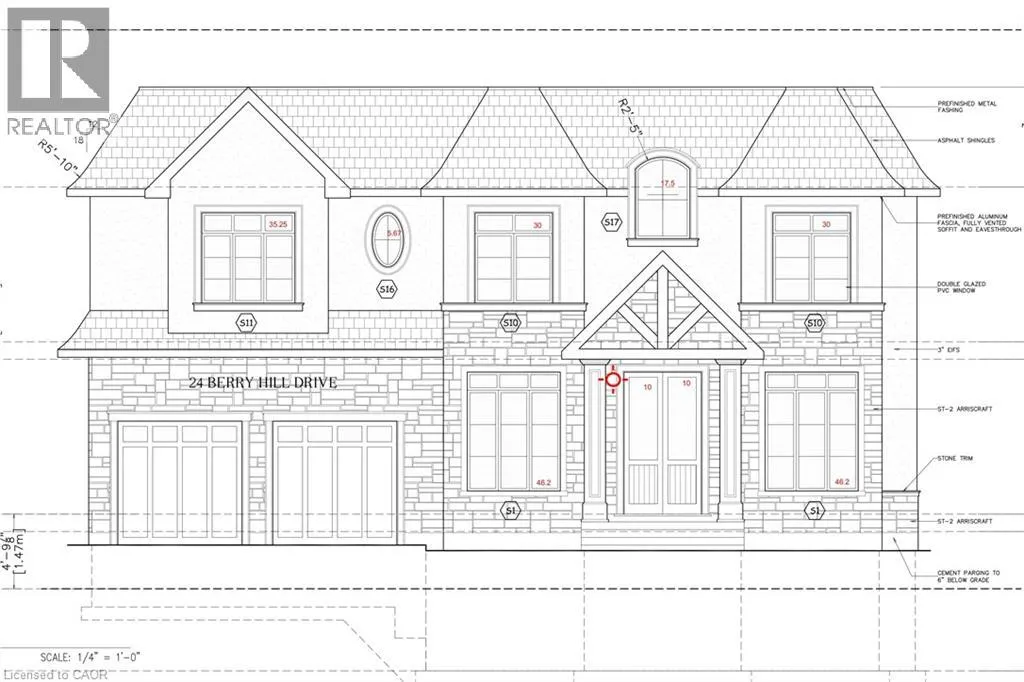
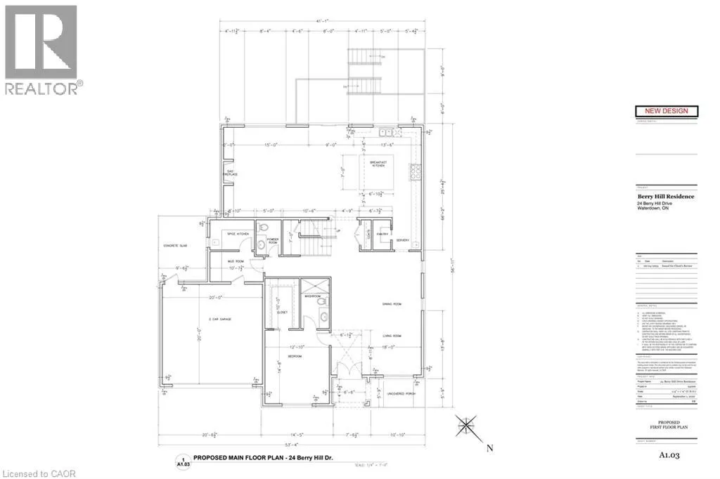
403/Hwy 6/ Dundas/ Berryhill Stunning Lot in Waterdown (61.5' X 137')* Located steps from Waterdown’s downtown, this prime lot offers a unique development opportunity, nestled on a quiet closed avenue (cul-de-sac). With services available at the road and a full plan/permit package included, it’s ready for your custom dream home. Just minutes from parks, schools, shops, trails, and easy access to highways, it’s a rare chance to buy and hold or build now, as property values rise in this flourishing area. *Original Design* Development charges are already paid, and permits are approved for a single detached home of up to 4,000 sq ft with a walk-out basement. Architectural drawings are ready. *New Design* The new plans include a main floor bedroom with a walk-in closet and ensuite, ideal as an in-law suite. A separate spice kitchen adds convenience. The second floor features two master bedrooms with ensuites, plus a loft that can be converted into a fifth bedroom, opening to a covered balcony. Each bedroom has a walk-in closet and ensuite, ensuring privacy and comfort. This lot offers flexibility and potential, whether you’re ready to build or looking for an investment opportunity in a flourishing area. (id:27476)

Property Highlights

MLS® Number
40785817
Type
Vacant Land
Ownership Type
Freehold
Land Size
0.195 ac|under 1/2 acre

Building

Amenities
Schools
Fireplace Present
No
Basement Type
None
Basement Features
Building Heating Type
Heating Fuel
Building Cooling Type

Utilities

Water
Municipal water
Utility Sewer
Municipal sewage system

Location

Learn more about this property
Listing provided by:
Royal LePage Macro Realty
MLS® number:
40785817
Agent:
Garry Singh
*Indicates required field
Name is required
Email is required
Please enter a valid phone number (e.g., 416-111-1111).