17 Mechanic Street W, Waterford, Ontario N0E 1Y0

Listed for:
$509,900
2 beds
2 baths
Listed 19 days ago
House for rent: 17 Mechanic Street W, Waterford, Ontario N0E 1Y0

View all 42 photos

Learn more about this property
Listing provided by:
RE/MAX ERIE SHORES REALTY INC. BROKERAGE
MLS® number:
40793682
Agent:
Steve Szucs
*Indicates required field
Name is required
Email is required
Please enter a valid phone number (e.g., 416-111-1111).

About

Turn West off of Main St. Charming 1.5 storey home on a near half-acre treed lot, just a short walk to downtown Waterford. Approx. 1,200 sq.ft. with 2 bedrooms and 1.5 baths. Bright kitchen with ample storage and walkout to side deck, warm living room, and 2-pc bath on main. Two spacious bedrooms and 4-pc bath upstairs. Freshly painted with roof replaced in 2022. Enjoy a home setback from the road with a large backyard, and 2-car garage — the ideal mix of privacy, character, and convenience. (id:27476)

Property Highlights

MLS® Number
40793682
Type
Single Family
Ownership Type
Freehold
Land Size
0.49 ac|under 1/2 acre
Parking Space Total
4

Building

Building Type
House
Storeys
1.50
Square Footage
1128 sqft
Bathrooms Total
2
Bedrooms Above Ground
2
Bedrooms Total
2
Amenities
Golf Nearby, Park, Schools
Exterior Finish
Aluminum siding
Fireplace Present
No
Basement Type
Partial (Unfinished)
Basement Features
Building Heating Type
Forced air
Heating Fuel
Natural gas
Building Cooling Type
Central air conditioning

Utilities

Water
Municipal water
Utility Sewer
Municipal sewage system

Room Layout

4pc Bathroom
Second level
7'1'' x 8'9''
Bedroom
Second level
10'11'' x 12'2''
Bedroom
Second level
15'3'' x 11'6''
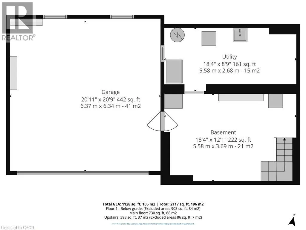
Utility room
Basement
18'4'' x 8'9''
Recreation room
Basement
18'4'' x 12'1''
Foyer
Main level
8'9'' x 5'6''
2pc Bathroom
Main level
6'7'' x 3'6''
Laundry room
Main level
6'7'' x 9'1''
Kitchen
Main level
15'6'' x 12'1''
Dining room
Main level
9'8'' x 12'1''
Living room
Main level
18'4'' x 12'4''

Location