4056 John Street, Waterford, Ontario N0E 1Y0

Listed for:
$510,000
3 beds
1 baths
Listed 7 days ago
House for rent: 4056 John Street, Waterford, Ontario N0E 1Y0

View all 30 photos

About

From Main St. N, Head West on Sovereign St. to John St. and the property is straight ahead at the end of the street. Excellent opportunity for first time buyers and downsizers. Very large (approximately half acre) lot just one block from Shadow Lake and the walking bridge to downtown. Close proximity to all that Waterford has to offer including, walking trails, playparks, fishing and other water sports. As well as shopping, antique markets, restaurants and local events. This is a 3-bedroom home with eat in kitchen and main floor 4-piece bath plus an unfinished basement (with bathroom rough in) ready for your design ideas. (id:27476)

Property Highlights

MLS® Number
40815256
Type
Single Family
Ownership Type
Freehold
Land Size
0.476 ac|under 1/2 acre
Parking Space Total
4

Building

Building Type
House
Storeys
1.00
Square Footage
2198 sqft
Bathrooms Total
1
Bedrooms Above Ground
3
Bedrooms Total
3
Amenities
Park, Playground, Schools, Shopping
Exterior Finish
Aluminum siding, Brick
Fireplace Present
No
Basement Type
Full (Unfinished)
Basement Features
Building Heating Type
Forced air
Heating Fuel
Building Cooling Type
Central air conditioning

Utilities

Water
Municipal water
Utility Sewer
Municipal sewage system

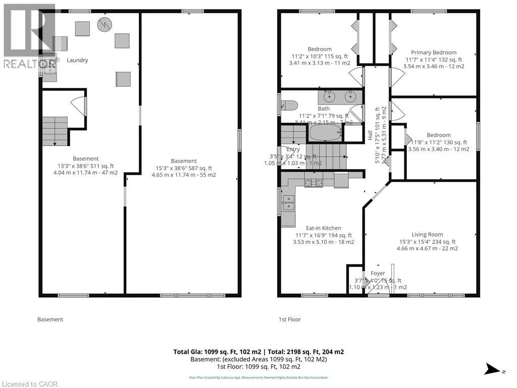
Room Layout

Other
Basement
15'3'' x 38'6''
Other
Basement
13'3'' x 38'6''
4pc Bathroom
Main level
Measurements not available
Bedroom
Main level
11'2'' x 10'3''
Bedroom
Main level
11'8'' x 11'2''
Primary Bedroom
Main level
11'7'' x 11'4''
Kitchen
Main level
11'7'' x 16'9''
Living room
Main level
15'3'' x 15'4''

Location

Learn more about this property
Listing provided by:
RE/MAX Erie Shores Realty Inc. Brokerage
MLS® number:
40815256
Agent:
Brent Barber
*Indicates required field
Name is required
Email is required
Please enter a valid phone number (e.g., 416-111-1111).