1652 Old Highway 24, Waterford, Ontario N0E 1Y0

Listed for:
$849,900
6 beds
4 baths
Listed 5 days ago
House for rent: 1652 Old Highway 24, Waterford, Ontario N0E 1Y0

View all 41 photos

About

Welcome to peaceful country living just outside Waterford. This spacious 6-bedroom, 4-bathroom home offers room for the whole family and the privacy you’ve been dreaming of. Step through the front door into soaring cathedral ceilings and a bright, open-concept kitchen and dining area—perfect for everyday living and entertaining. The main floor features two bedrooms and a 4-piece bathroom complete with a relaxing soaker tub. Upstairs, you’ll find a second living room ideal for a family lounge or kids’ retreat, along with a massive primary suite featuring a private ensuite. Three additional bedrooms and a convenient 2-piece bathroom complete the upper level. The finished lower level adds even more living space with a large rec room and an additional bathroom—perfect for hobbies, or movie nights. Sliding doors off the kitchen lead to a spacious deck overlooking a private yard with no immediate neighbours, surrounded by peaceful farm fields and open skies. A rare opportunity to enjoy space, privacy, and true country charm while staying close to town. (id:27476)

Property Highlights

MLS® Number
40816414
Type
Single Family
Ownership Type
Freehold
Land Size
1/2 - 1.99 acres
Parking Space Total
8

Building

Building Type
House
Storeys
2.00
Square Footage
2851 sqft
Bathrooms Total
4
Bedrooms Above Ground
6
Bedrooms Total
6
Exterior Finish
Brick, Vinyl siding
Fireplace Present
No
Basement Type
Full (Partially finished)
Basement Features
Building Heating Type
Forced air
Heating Fuel
Natural gas
Building Cooling Type
Central air conditioning

Utilities

Water
Drilled Well
Utility Sewer
Septic System

Room Layout

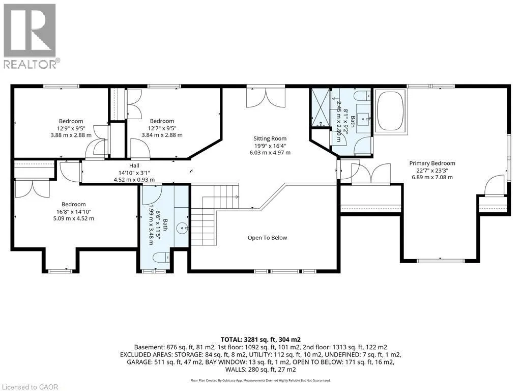
2pc Bathroom
Second level
Measurements not available
Bedroom
Second level
16'8'' x 14'10''
Bedroom
Second level
12'9'' x 9'5''
Bedroom
Second level
12'7'' x 9'5''
Full bathroom
Second level
Measurements not available
Primary Bedroom
Second level
22'7'' x 23'3''
Sitting room
Second level
19'9'' x 16'4''
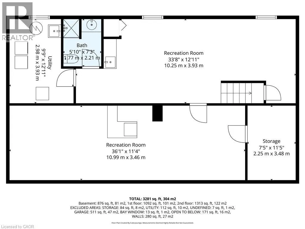
3pc Bathroom
Basement
Measurements not available
Recreation room
Basement
36'1'' x 11'4''
Recreation room
Basement
33'8'' x 12'11''
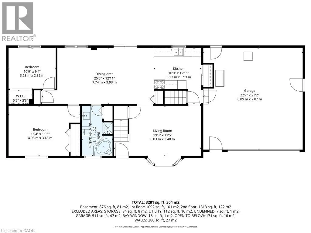
4pc Bathroom
Main level
Measurements not available
Bedroom
Main level
10'9'' x 9'4''
Bedroom
Main level
16'4'' x 11'5''
Dining room
Main level
25'5'' x 12'11''
Kitchen
Main level
10'9'' x 12'11''
Living room
Main level
19'9'' x 11'5''

Location

Learn more about this property
Listing provided by:
RE/MAX Erie Shores Realty Inc. Brokerage
MLS® number:
40816414
Agent:
Robyn Kichler
*Indicates required field
Name is required
Email is required
Please enter a valid phone number (e.g., 416-111-1111).