55 Norfolk Street, Waterford, Ontario N0E 1Y0

Listed for:
$572,300
2 beds
2 baths
Listed 4 days ago
House for rent: 55 Norfolk Street, Waterford, Ontario N0E 1Y0

View all 9 photos

About

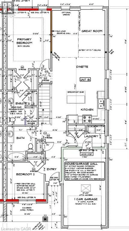
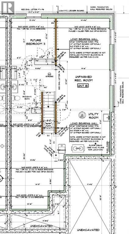
Hwy 24 N to Conc 8, east to Norfolk St. Welcome to 55 Norfolk Street in Waterford. This nearly completed 1,266 sq. ft. semi-detached bungalow offers an affordable opportunity to secure a quality new home with flexible timing. Ideal for buyers starting out or downsizing, this thoughtfully designed bungalow provides comfortable one-floor living with your own yard — and no condo fees. Designed with everyday living in mind, this home features a covered front porch and back deck, along with excellent sound separation thanks to a poured concrete wall between units — a standout feature for privacy and long-term comfort. The open-concept interior includes a spacious great room with patio doors, a dining area, and a custom kitchen finished with quartz countertops, custom cabinetry, a centre island with seating, pot lighting, and modern fixtures. The primary bedroom offers a walk-through closet and a private 3-piece ensuite with tiled shower. A second bedroom provides flexibility as a guest room or den, complemented by a full 4-piece main bath. Main-floor laundry and a mudroom are conveniently located off the garage entry. The full unfinished basement includes large windows and a bathroom rough-in, offering excellent future potential. Additional features include a tankless water heater (owned), central air, forced-air gas furnace, utility sink, sump pump, and fiberglass shingles. Nearly complete — secure now and move in soon. Taxes not yet assessed. Pictures of a similar model for illustration purposes. Price reflect newly announced HST credits. (id:27476)

Property Highlights

MLS® Number
40817553
Type
Single Family
Ownership Type
Freehold
Land Size
under 1/2 acre
Parking Space Total
2

Building

Building Type
House
Storeys
1.00
Square Footage
1266 sqft
Bathrooms Total
2
Bedrooms Above Ground
2
Bedrooms Total
2
Amenities
Place of Worship, Schools, Shopping
Exterior Finish
Brick Veneer, Stone, Vinyl siding
Fireplace Present
Yes
Basement Type
Full (Unfinished)
Basement Features
Building Heating Type
Forced air
Heating Fuel
Natural gas
Building Cooling Type
Central air conditioning

Utilities

Water
Municipal water
Utility Sewer
Municipal sewage system

Room Layout

Full bathroom
Main level
Measurements not available
4pc Bathroom
Main level
Measurements not available
Laundry room
Main level
6'0'' x 10'0''
Bedroom
Main level
10'0'' x 10'3''
Primary Bedroom
Main level
15'8'' x 12'0''
Dinette
Main level
10'3'' x 10'0''
Kitchen
Main level
8'9'' x 10'0''
Great room
Main level
12'8'' x 14'4''

Location

Learn more about this property
Listing provided by:
COLDWELL BANKER BIG CREEK REALTY LTD. BROKERAGE
MLS® number:
40817553
Agent:
Cindy Crevits
*Indicates required field
Name is required
Email is required
Please enter a valid phone number (e.g., 416-111-1111).