211-213 - 130 Columbia St W Street, Waterloo, Ontario N2L 0G6

Listed for:
$149,999
0 beds
2 baths
Listed 85 days ago
211-213 - 130 Columbia St W Street, Waterloo, Ontario N2L 0G6

View all 31 photos

About

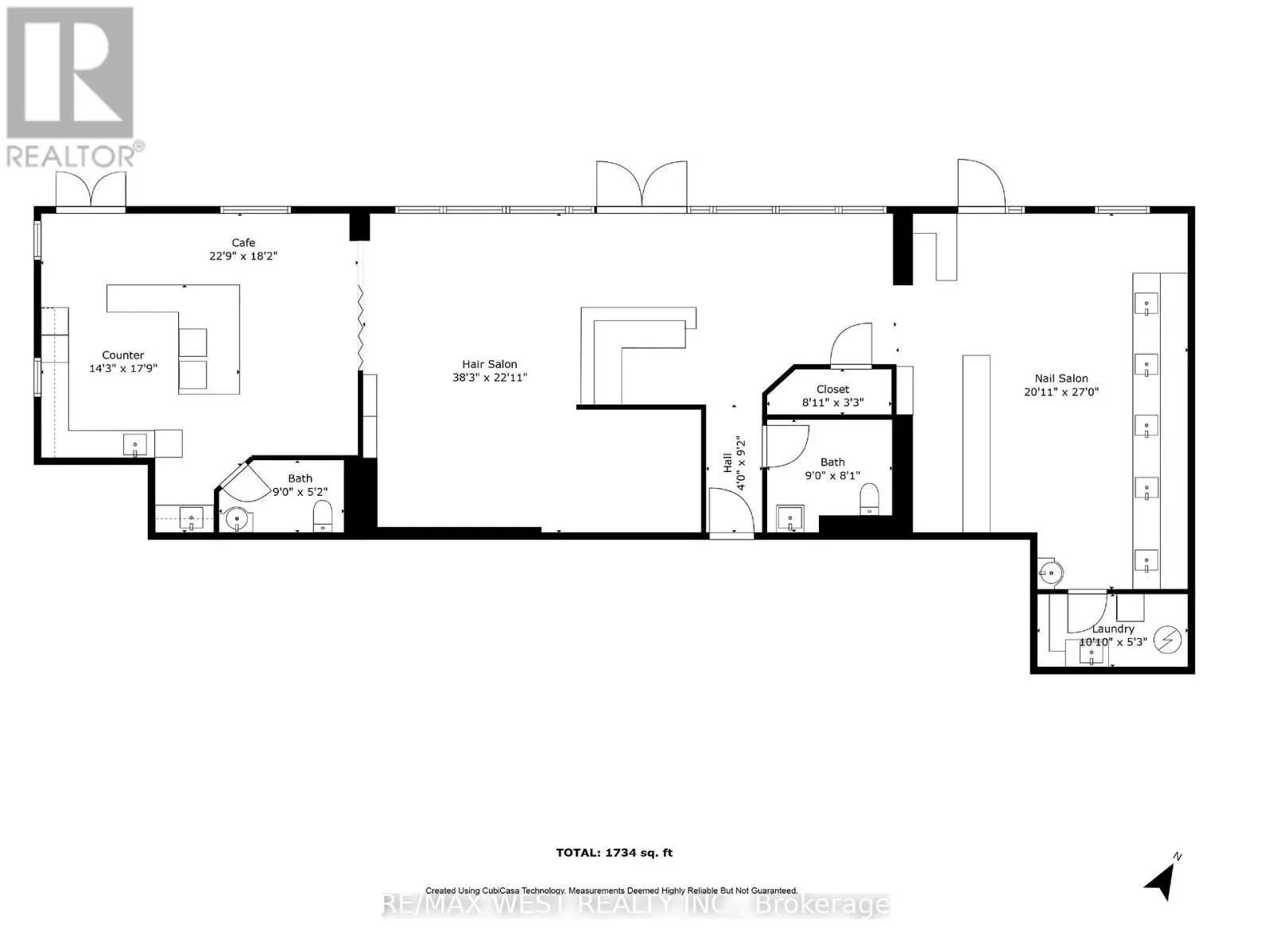
Cross Streets: Columbia St W & Albert St. ** Directions: NA. An incredible opportunity to own a turnkey Beauty Salon Business with a built-in Bar/Cafe with a liquor license in a prestigious neighborhood at the heart of Waterloo. Minutes from The University of Waterloo and Laurier. 7 years in business. Large loyal clientele. The salon is divided into 3 sections: Nail Spa, Hair Salon, and a Bar/Cafe that serves Spirits, Bubble Tea, Coffee, and Deserts. Fully renovated with luxury modern finishes, custom-made fixtures, and high-end equipment + inventory. For Sale "as is", including all furniture: 6 hairstyling stations, 2 hair sinks, all shelving, desks & chairs, fully stocked back bar, color bar, and retail area, 4 Manicure Stations, 5 Pedicure Stations. Current employees willing to stay. Guaranteed positive cashflow from day one. Perfect for an investor, hairstylist or aesthetician. Surrounded by anchor businesses and hundreds of residents. (id:27476)

Property Highlights

MLS® Number
X12370047
Type
Business
Land Size
Unit=55 x 39 FT

Building

Square Footage
2187 sqft
Bathrooms Total
2
Fireplace Present
No
Basement Type
Basement Features
Building Heating Type
Forced air
Heating Fuel
Natural gas
Building Cooling Type
Fully air conditioned

Utilities

Water
Municipal water

Location

Learn more about this property
Listing provided by:
RE/MAX WEST REALTY INC.
MLS® number:
X12370047
Agent:
David Buriev
*Indicates required field
Name is required
Email is required
Please enter a valid phone number (e.g., 416-111-1111).