89a William Street W, Waterloo, Ontario N2L 1J6

Listed for:
$450,000
0 beds
0 baths
Listed 225 days ago
89a William Street W, Waterloo, Ontario N2L 1J6

View all 13 photos

About

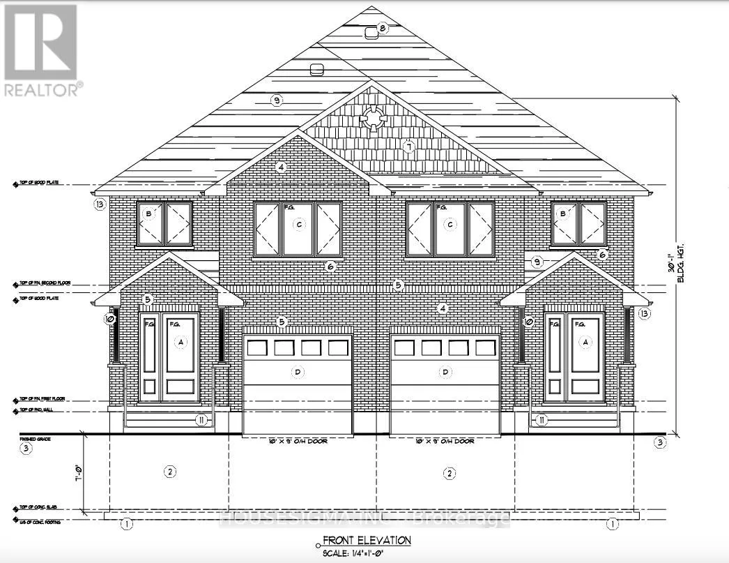
Cross Streets: Avondale Ave S + William St W. ** Directions: E on William S W. Premium Investment Opportunity - Presenting a rare and highly sought-after investment opportunity in the heart of Waterloo's most coveted location William St W. This permit-ready, subdivided two-lot package offers an unparalleled foundation for immediate development. Key Features include ; Approved for Construction: City-approved plans for 4 units, including two - 2-story, 3-bedroom, 2.5-bath homes with spacious main and second floors along with Fully approved 2 - bedroom, 1-bathroom auxiliary dwelling unit, providing additional rental income potential. Demolition Complete: The property is already cleared, leaving you with a blank slate to implement your vision and start construction right away. Prime Location: Situated on the desirable and highly accessible William Street, this property offers unbeatable value in a growing, high-demand area.This is an exceptional opportunity for investors to capitalize on a turn-key project with all the initial work done for you. Don't miss your chance to develop on one of the few available lots with this level of approval and potential. All thats left is for you to make your mark! ! To be sold as a package with 89B William St W , price per lot. Taxes to be assessed by the city still as taxes listed reflect combined taxes. Town approved building permit plans available. (id:27476)

Property Highlights

MLS® Number
X12421018
Type
Vacant Land
Land Size
29.14 x 131.33 FT|under 1/2 acre

Building

Fireplace Present
No
Basement Type
Basement Features
Building Heating Type
Heating Fuel
Building Cooling Type

Location

Learn more about this property
Listing provided by:
HOUSESIGMA INC.
MLS® number:
X12421018
Agent:
Shawna Mcfadyen
*Indicates required field
Name is required
Email is required
Please enter a valid phone number (e.g., 416-111-1111).