282 Erb Street W, Waterloo, Ontario N2L 1W3

Listed for:
$3,288,000
0 beds
0 baths
Listed 11 days ago
282 Erb Street W, Waterloo, Ontario N2L 1W3

View all 3 photos

About

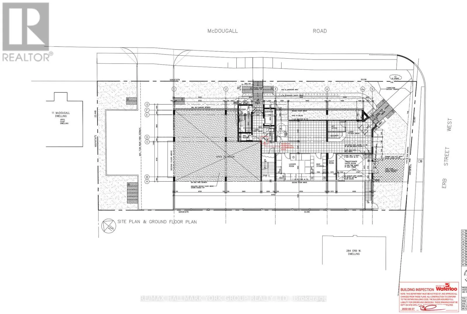
Cross Streets: University. ** Directions: Driving through Bridgeport Rd E to Erb St. W. Previously approved site plan for a 35-unit rental/condominium development, zoned RMU-20 (Residential Mixed Use)-a compelling opportunity tailored for small to mid-sized developers targeting a proven, high-demand rental corridor.Positioned just steps from the University of Waterloo and Wilfrid Laurier University, the property is ideally suited for student housing as well as potential senior/retirement-oriented rental concepts. The location offers consistent, year-round rental demand driven by a strong academic and local community base. Walking distance to both campuses, combined with a direct bus stop at the doorstep, ensures exceptional accessibility and enduring tenant appeal.Offered at land value with existing building permits in place (subject to amendment for updated plans), this is a rare, near shovel-ready development opportunity-allowing investors to accelerate timelines and unlock value with minimal upfront entitlement risk. (id:27476)

Property Highlights

MLS® Number
X13007430
Type
Vacant Land
Land Size
73.77 x 172.49 FT|under 1/2 acre

Building

Fireplace Present
No
Basement Type
Basement Features
Building Heating Type
Heating Fuel
Building Cooling Type

Utilities

Water
Municipal water

Location

Learn more about this property
Listing provided by:
RE/MAX HALLMARK YORK GROUP REALTY LTD.
MLS® number:
X13007430
Agent:
Merrick Bao
*Indicates required field
Name is required
Email is required
Please enter a valid phone number (e.g., 416-111-1111).