125 - 350 Prince Charles Dr Drive S, Welland, Ontario L3C 7B3

Listed for:
$399,000
0 beds
1 baths
Listed 64 days ago
Apartment for rent: 125 - 350 Prince Charles Dr Drive S, Welland, Ontario L3C 7B3

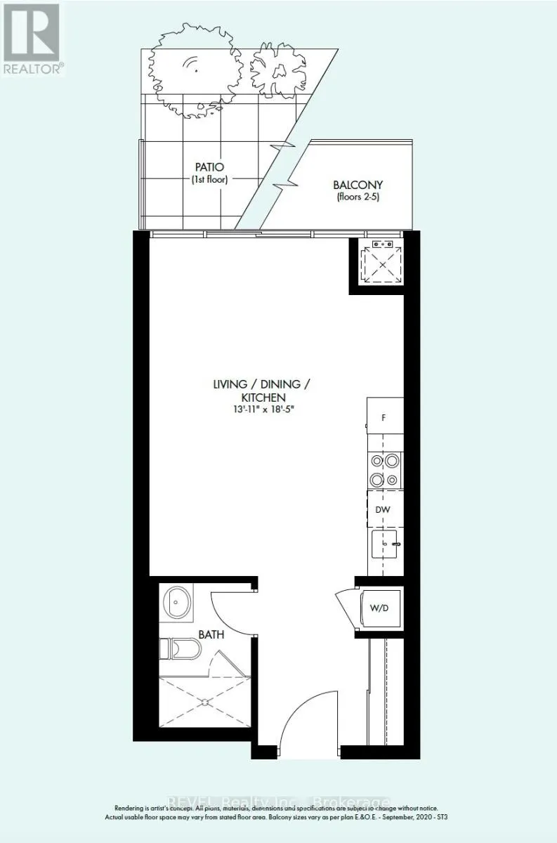
View all 4 photos

About

Lincoln Street/Prince Charles Drive S Condo fees and taxes are included for TWO YEARS in purchase price!! Enjoy serene waterfront living in this bright and efficiently designed studio suiteThe Flatwater at Upper Vista Welland, located at 350 Prince Charles Drive. This open-concept space seamlessly blends a combined living, dining, kitchen, and bedroom area, creating a functional flow ideal for everyday comfort or entertaining. Offering 422 square feet, the suite delivers a minimalist and cozy retreat, complete with in-suite laundry and one parking space for added convenience. Step out onto your private patio, the perfect place to unwind and take in peaceful water views. Set along Welland's scenic waterfront and close to trails, parks, and local amenities, this suite combines comfort, convenience, and an enviable location. Appliances included. Completion: April, 2026. (id:27476)

Property Highlights

MLS® Number
X12885320
Type
Single Family
Community Name
772 - Broadway
Maintenance Fee
211.51
Ownership Type
Condominium/Strata
Parking Space Total
1

Building

Building Type
Apartment
Square Footage
0 - 499 sqft
Bathrooms Total
1
Amenities
Storage - Locker
Exterior Finish
Concrete
Fireplace Present
No
Basement Type
None
Basement Features
Building Heating Type
Forced air
Heating Fuel
Natural gas
Building Cooling Type
Central air conditioning

Location

Learn more about this property
Listing provided by:
REVEL Realty Inc., Brokerage
MLS® number:
X12885320
Agent:
Jessie Macdonald
*Indicates required field
Name is required
Email is required
Please enter a valid phone number (e.g., 416-111-1111).